RYNEK PIERWOTNY WILLE W SAN PEDRO DEL PINATAR
Rynek Pierwotny wille w San Pedro del Pinatar, Murcja.
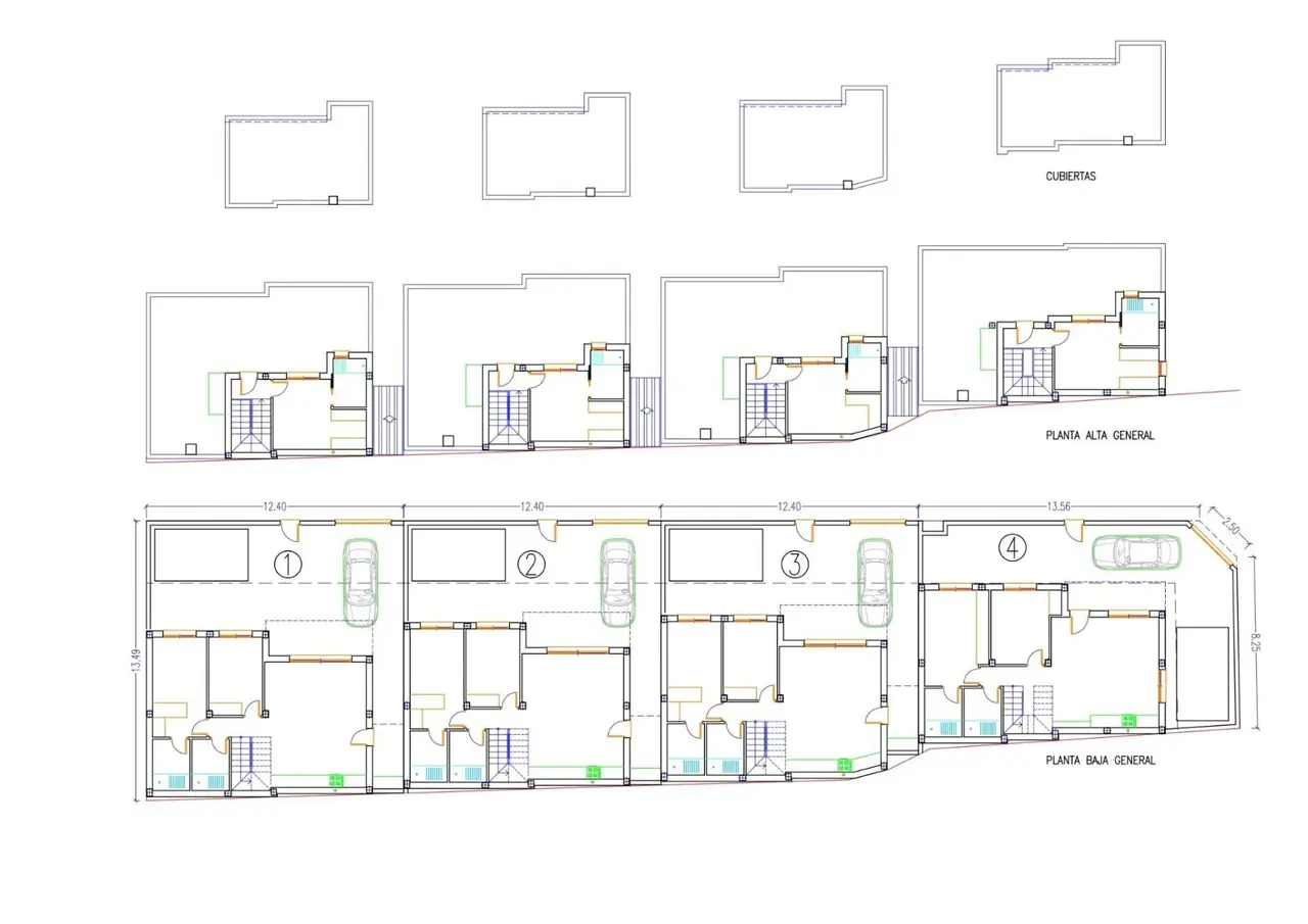
Ten ekskluzywny projekt obejmuje 4 niezależne wille z 3 sypialniami i 3 łazienkami, kuchnią na otwartym planie z przestronnym salonem, wbudowanymi szafami, w tym prywatnym basenem i dużym solarium – tarasem, na którym można cieszyć się słońcem każdego dnia w roku.
Nieruchomości mają w pełni wyposażone kuchnie i łazienki oraz wstępną instalację klimatyzacji kanałowej. Od strony południowej.
Uprzywilejowana lokalizacja San Pedro del Pinatar na wybrzeżu Mar Menor i Morza Śródziemnego przyciąga osoby zainteresowane żeglarstwem i sportami wodnymi, zapewniając cumowanie w marinie i kluby żeglarskie, podczas gdy plaże i naturalne kąpiele błotne przyciągają tych, którzy szukają bezpiecznego słońca, morza i piasku.
San Pedro del Pinatar ma ugruntowaną społeczność i oferuje doskonałą gamę zajęć, w tym kryty basen i obiekty sportowe, a także całoroczny program zajęć towarzyskich przy przyjemnej plaży.
całoroczny program zajęć towarzyskich przy przyjemnej zimowej pogodzie. Korzyści płynące z kąpieli błotnych, typowych dla regionu, lub spokojnych wód Mar Menor, sprzyjały rozwojowi Lo Pagán, które obecnie posiada wszelkiego rodzaju udogodnienia. Ponadto ma doskonałą lokalizację, zaledwie 5 minut od centrum handlowego Dos Mares.












