RYNEK PIERWOTNY WILLE W PINOSO
Rynek Pierwotny niezależne nowoczesne wille, które można zbudować na działkach rustykalnych lub miejskich, mamy szeroki wybór dostępnych w okolicy Pinoso:
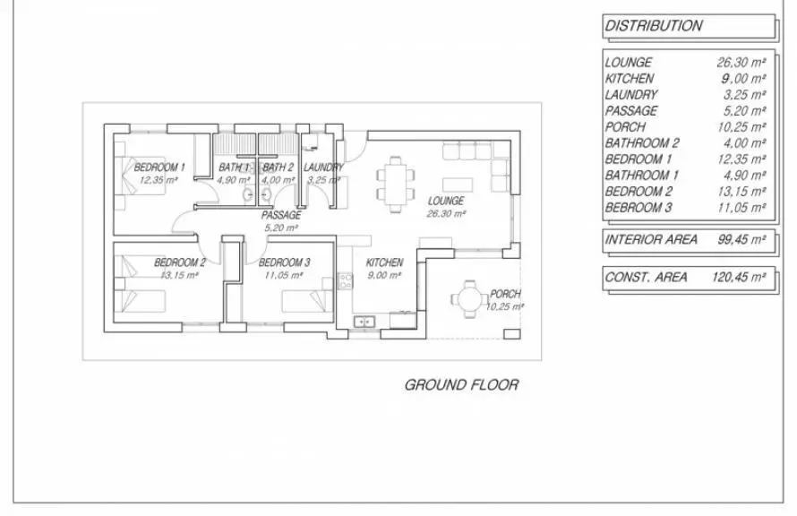
– 3 sypialnie, 2 łazienki
– Prywatny basen
– Pełna instalacja klimatyzacji
– W pełni wyposażona kuchnia
– Duży wybór wysokiej jakości materiałów
– Elektryczność i woda z sieci
– 4 panele słoneczne w zestawie
– Etykieta energetyczna AA
– Działka o powierzchni 15.658 m² w Pinoso
– Ogrodzona działka o powierzchni 3.000 m² dla łatwej konserwacji
– Brama przesuwna z napędem
Na działkach rustykalnych około 3.000 m2 całkowitej powierzchni działki zostanie ogrodzone, a domy zostaną dostarczone z około 1.000 m2 żwiru wokół domu.
Dom posiada prywatny basen i fotowoltaiczne panele słoneczne do zasilania w energię elektryczną.
Do wyboru jest kilka rustykalnych działek w różnych lokalizacjach, każda w innej cenie (w cenach opublikowanych w tym ogłoszeniu uwzględniono działkę o wartości 40.000 euro, jeśli kupujący wybierze inną działkę, ostateczna cena zostanie odpowiednio przeliczona).
Okres dostawy wynosi 8 miesięcy od wydania pozwolenia na budowę.
Działka jest nabywana w systemie autopromocji: kupujący dokonuje płatności na poczet ceny w miarę wykonywania prac przez wykonawcę.



















