RYNEK PIERWOTNY WILLE W PINAR DE CAMPOVERDE
Rynek Pierwotny nowe wille w Pinar de Campoverde.
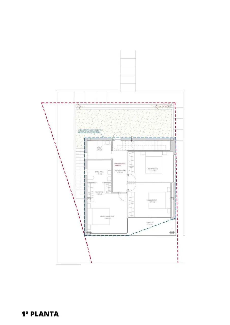
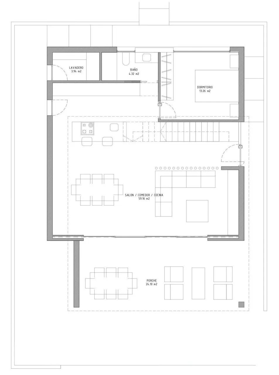
2 nowe ekskluzywne wille zbudowane na 2 piętrach na działkach o powierzchni 700 m2, mają 4 sypialnie i 3 łazienki, basen bez krawędzi, strefę leżaków i ogród wykończony sztuczną trawą w obszarach bliżej domu i basenu.
W pełni wyposażona kuchnia i łazienki oraz wstępna instalacja klimatyzacji.
Wille położone w Pinar de Campoverde (Alicante), w otoczeniu usług, obiektów sportowych, w pobliżu kilku pól golfowych, takich jak Las Colinas i Lo Romero Golf, a także 10 minut od Mar Menor i śródziemnomorskich plaż.
Piękne plaże Torre de la Horadada i Mil Palmeras z piaszczystą promenadą oddalone są o 10 minut jazdy samochodem.
Lotniska Corvera (Murcja) i Alicante znajdują się odpowiednio 40 i 55 minut jazdy od hotelu.



















