NOWE WILLE W PINAR DE CAMPOVERDE
2 Luksusowe wille New Build z basenem typu infinity i jacuzzi, duża działka o powierzchni 700 m2, duży taras i prywatny ogród, który otacza nieruchomość pozwala cieszyć się wszystkimi godzinami słońca, każdego dnia w roku.
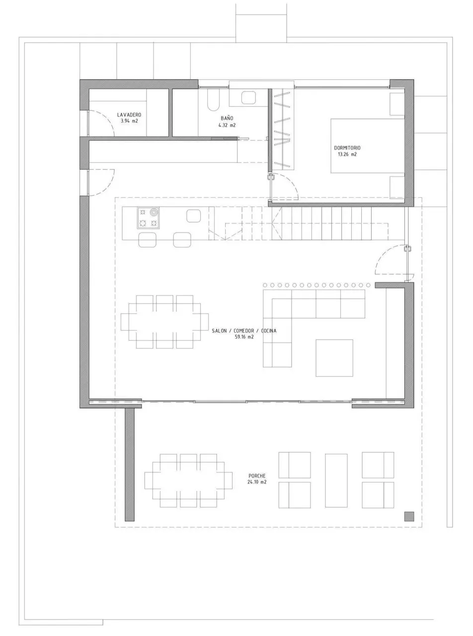
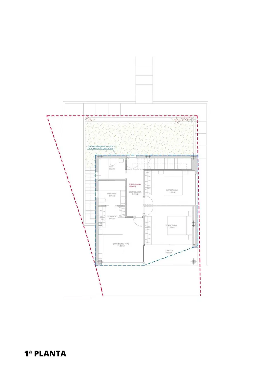
Nieruchomość posiada 4 sypialnie i 3 w pełni wyposażone łazienki. Zaprojektowany na dwóch poziomach w nowoczesnym stylu i otwartej koncepcji planu, składającej się z w pełni wyposażonej kuchni i salonu-jadalni.
Nieruchomość będzie spełniać najwyższe standardy i będzie wyposażona w:
Prywatny basen Infinity z obszarem jacuzzi i prysznicem słonecznym
Tarasy
W pełni wyposażoną kuchnię: Zintegrowana lodówka. Płyta indukcyjna na wyspie, wentylator wyciągowy wbudowany w sufit. Podwyższony piekarnik i mikrofalówka. Zintegrowana zmywarka do naczyń
Pralka w pralni.
W pełni wyposażone łazienki: szafka z wbudowaną umywalką i lustrem. Wbudowany brodzik z wbudowanym gresem, na poziomie gruntu. Szklany panel prysznicowy i ogrzewanie podłogowe.
Szafy wnękowe z szufladami
Oświetlenie wewnętrzne i zewnętrzne
Instalacja wideodomofonu
Preinstalacja do klimatyzacji
Brama garażowa z silnikiem
Villa znajduje się w Pinar de Campoverde (Alicante), w otoczeniu usług, obiektów sportowych, w pobliżu kilku pól golfowych, takich jak Las Colinas i Lo Romero Golf, plus jest 10 minut daleko od Mar Menor i plaż Morza Śródziemnego.



















