NOWE WILLE W ORIHUELA COSTA
Kompleks mieszkalny New Build w Orihuela Costa.
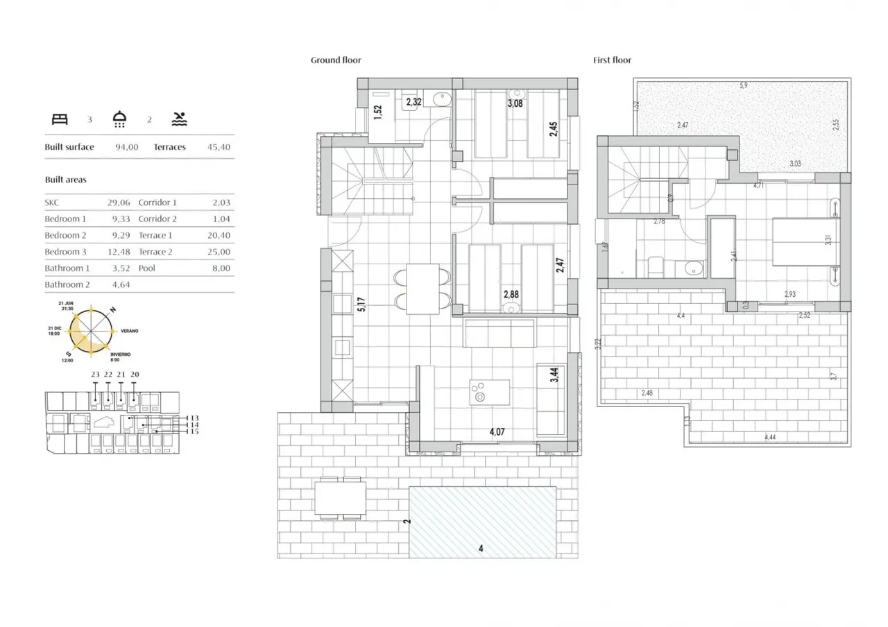
Mieszkaniowy składający się z 25 willi na dwóch poziomach z różnymi niezależnymi lub bliźniaczymi modelami z 3 sypialniami i 2 łazienkami, a także prywatnymi ogrodami i dużym obszarem wspólnym z basenem.
Opcje podziemne miejsce parkingowe i prywatny basen za dodatkową opłatą.
Wille położone w przyjemnej okolicy Villamartín Golf Course w spokojnym otoczeniu, mając komfort wszystkich usług na wyciągnięcie ręki.
Urbanizacja położona 30 minut od lotniska w Alicante.























