Nowo wybudowana willa w Teulada z widokiem na góry
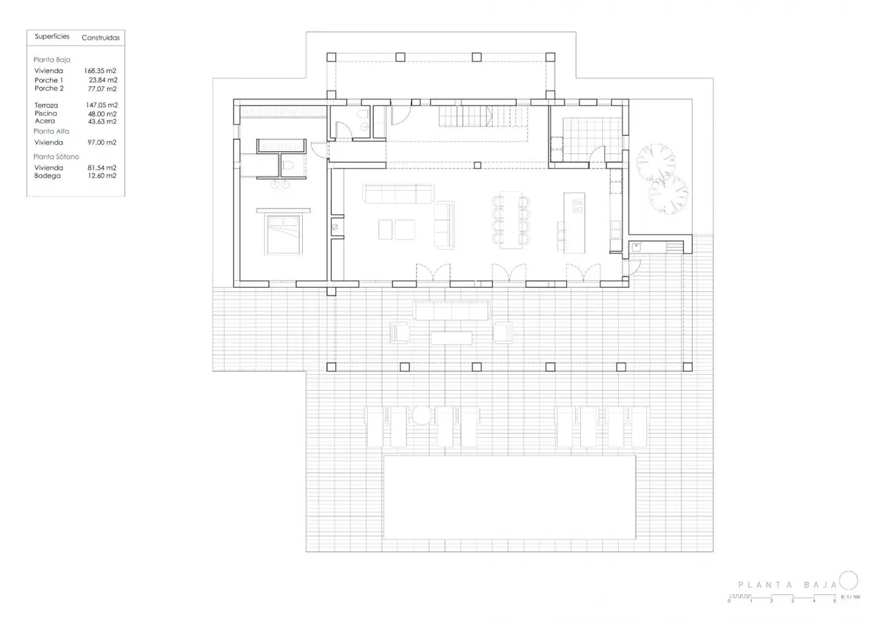
Na parterze znajduje się duży salon-jadalnia i kuchnia na otwartym planie, główna sypialnia z garderobą i łazienką, przedni taras z dostępem do basenu.
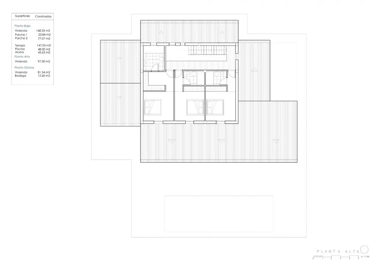
Na pierwszym piętrze są 3 sypialnie z szafami, 3 łazienki z łazienkami.
Jak również tutaj masz piwnicę 81m2 z piwnicą na wino.
Willa będzie zbudowana przy użyciu wysokiej jakości materiałów.
Kuchnia zostanie wybrana przez klienta, szafki kuchenne, blat i urządzenia.
Klimatyzacja z systemem kontroli klimatu (condense) w salonach i sypialniach.
Marka Mitsubishi.
Basen będzie wyposażony w zewnętrzny
prysznicem na zewnątrz (podłączenie ciepłej/zimnej wody).
Automatyczna brama wjazdowa dla samochodów z pilotem i automatyczne drzwi dla pieszych.
Ogród do wyboru przez klienta.
Moraira to małe miasteczko z dobrymi restauracjami, barami i wieloma supermarketami w okolicy.
Tuż obok znajduje się bardzo przyjemna plaża, idealna dla rodzin.
Z nadbrzeża roztacza się wspaniały widok na Penon Ifach po drugiej stronie zatoki w Calpe. Warto wybrać się tam drogą nadbrzeżną, aby podziwiać spektakularne widoki.
Moraira, położona około 1 godziny 15 minut na północ drogą A7 z lotniska w Alicante, jest dość łatwa do zdobycia. W podobnej odległości lub nieco mniej na południe znajduje się lotnisko w Walencji.








