RYNEK PIERWOTNY BUDYNEK MIESZKALNY W LAS ROCAS EN MANILVA
Rynek Pierwotny budynek mieszkalny z 16 kamienicami i willami w zabudowie bliźniaczej położony w Las Rocas en Manilva, na Costa del Sol.
Osiedle oferuje najlepsze i najbardziej spektakularne widoki na morze, rozciągające się na Gibraltar i marokańskie wybrzeże z najlepszą orientacją. Idealne miejsce, aby cieszyć się autentycznym śródziemnomorskim stylem życia.
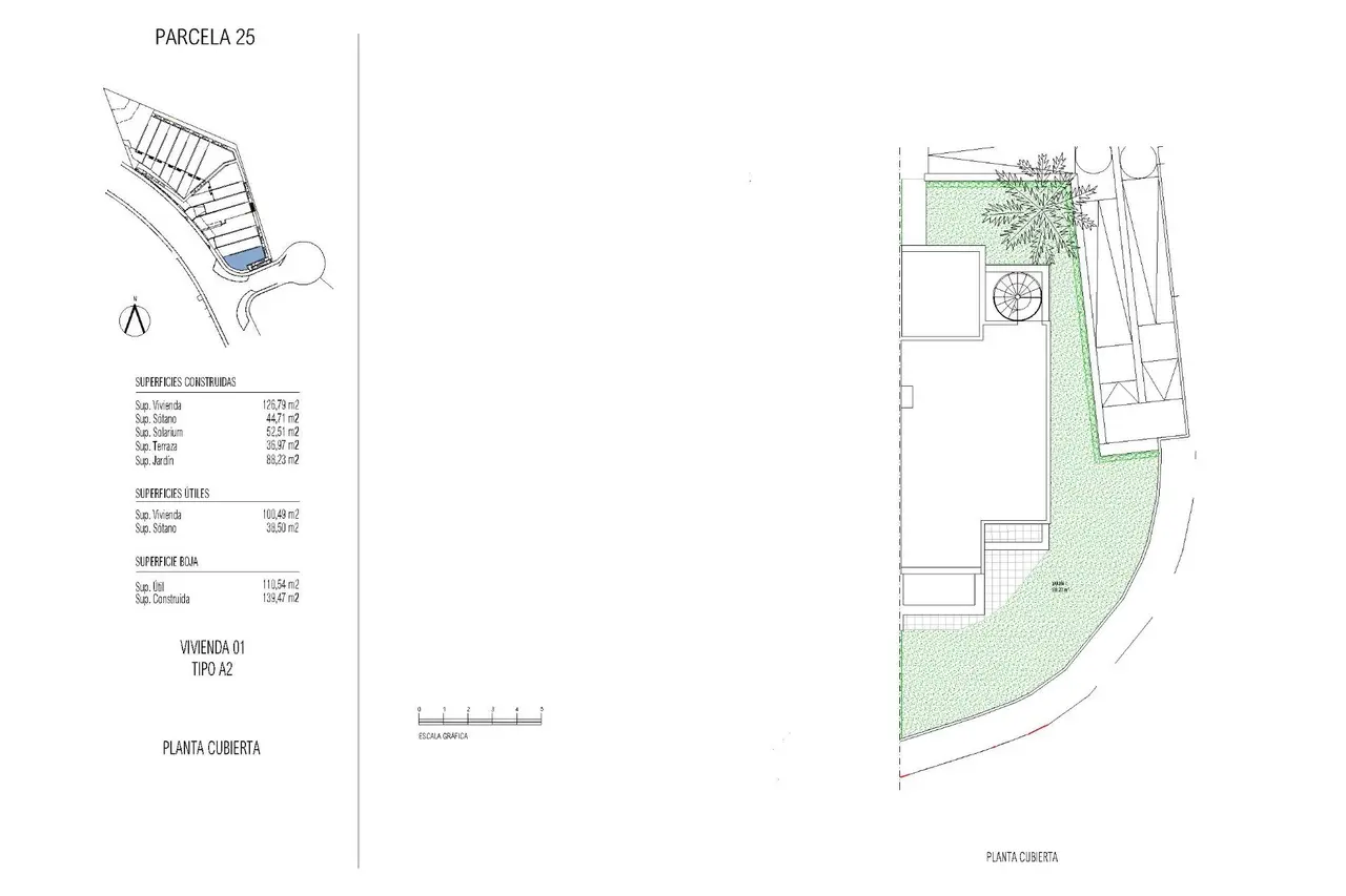
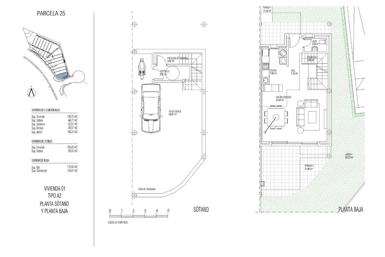
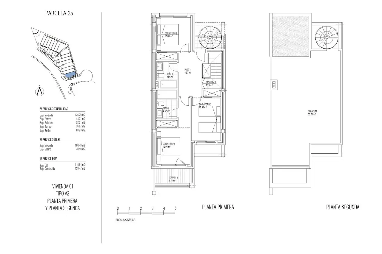
Nowoczesne nieruchomości z 3 sypialniami, 2 łazienkami, kuchnią na otwartym planie z przestronnym salonem, wbudowanymi szafami, tarasami, solarium, prywatnym ogrodem i piwnicą z garażem.
Kompleks mieszkalny jest w pełni zamknięty i ogrodzony. Obszary wspólne są wyposażone w oświetlenie LED zapewniające maksymalną efektywność energetyczną i rampy dojazdowe.
Prywatne miejsce parkingowe na dwa samochody.
Można korzystać z części wspólnych: duży basen będzie wyposażony w nowoczesną technologię najnowszej generacji. Będzie również kort do tenisa łopatkowego, strefa dla dzieci.
Rezydencja położona w doskonałej lokalizacji między Marbellą i Sotogrande, w samym sercu Costa del Sol i bardzo blisko plaży. Łatwy dostęp dzięki doskonałej komunikacji drogowej, która łączy się bezpośrednio z N340 na km150. Znajduje się zaledwie 1 godzinę od międzynarodowego lotniska w Maladze i 25 minut od lotniska w Gibraltarze.
Otoczony terenami zielonymi i najlepszymi polami golfowymi w Europie. W odległości zaledwie 5 minut znajduje się La Reserva Club w Sotogrande, wspaniały obszar rekreacyjny, który obejmuje golf, jazdę konną i ośrodek z restauracjami, białą piaszczystą plażą i laguną do uprawiania sportów.











