NOWE WILLE W ZABUDOWIE BLIŹNIACZEJ W LOS MONTESINOS
Osiedle 12 nowo wybudowanych willi w zabudowie bliźniaczej w Los Montesinos, La Herrada.
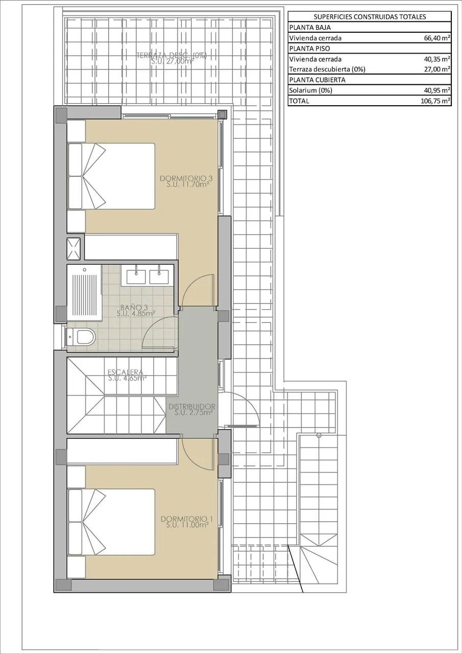
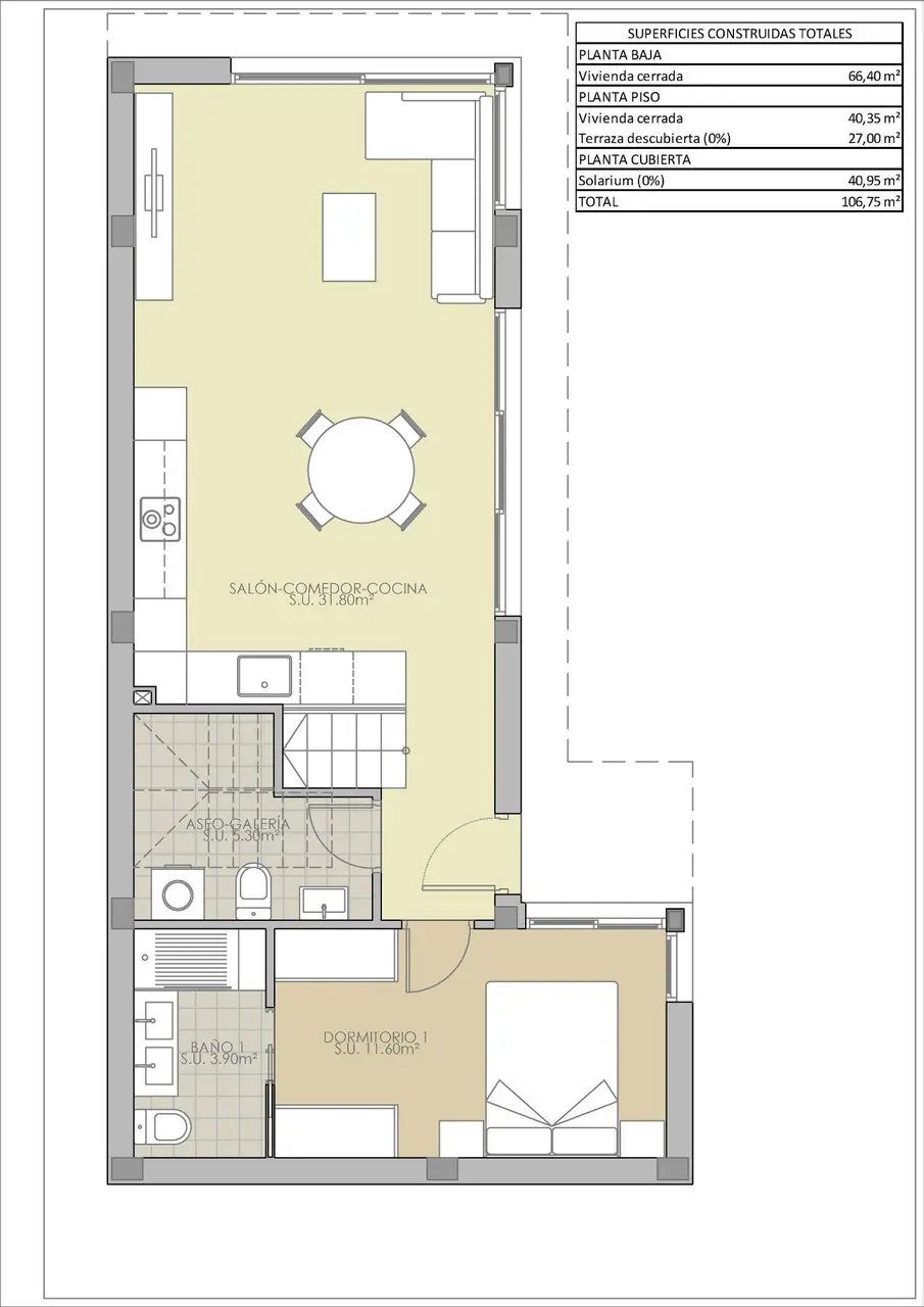
Nowoczesne wille z 3 sypialniami i 2 łazienkami, kuchnią na otwartym planie z wbudowanymi szafami w salonie, tarasem, prywatnym ogrodem, miejscem parkingowym.
Opcje solarium i prywatnego basenu za dodatkową opłatą.
Wille położone w gminie Los Montesinos, w jednej z najbardziej znanych i spokojnych dzielnic La Herrada.
Typowe miasteczko Los Montesinos jest strategicznie położone 10 minut jazdy samochodem od plaż i rekreacji Torrevieja (ze wszystkimi usługami dużego miasta: teatr, 2 szpitale, szkoły międzynarodowe itp.), od kilku pól golfowych i z łatwym dostępem do autostrady A7, aby dotrzeć do lotniska Alicante w 20 minut.
W urbanizacji znajdują się supermarkety i bary do codziennej obsługi, będąc wiejskim i cichym środowiskiem.
Klimat w tym obszarze gwarantuje 300 słonecznych dni w roku ze średnią temperaturą 20ºC, co w połączeniu z bogatą gastronomią oraz atrakcjami kulturalnymi i sportowymi dostępnymi w okolicy sprawia, że obszar ten jest idealnym miejscem do założenia drugiej rezydencji na wakacje lub spokojnego miejsca do zamieszkania na stałe.















