RYNEK PIERWOTNY KOMPLEKS W LOS BELONES, LA MANGA MAR MENOR
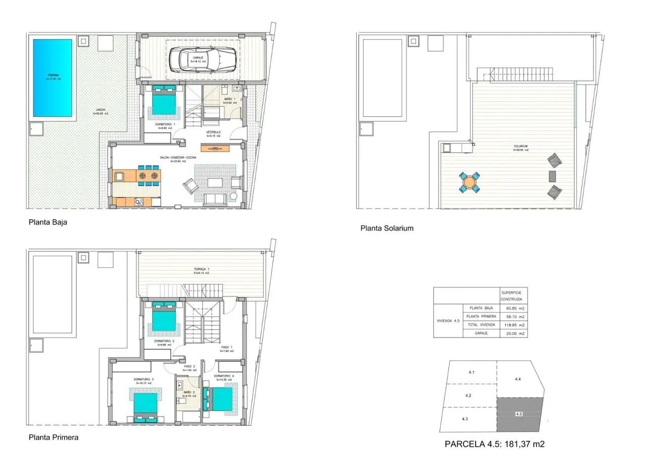
Rynek Pierwotny luksusowy kompleks 5 nieruchomości (3 kamienice i 2 wille) z prywatnym basenem, ogrodzonym garażem, wewnętrznym patio, solarium z letnią kuchnią i wstępną instalacją do ładowania pojazdów elektrycznych.
Każda nieruchomość ma 4 sypialnie i 3 łazienki, z możliwością wyboru 3 większych sypialni, zaprojektowanych z eleganckimi i funkcjonalnymi wnętrzami, w pełni wyposażonymi kuchniami i sprzętem AGD.
W sypialniach znajdują się szafy z szufladami, a także wstępna instalacja klimatyzacji kanałowej.
Los Belones to bardzo popularna duża wioska położona w odległości krótkiej przejażdżki od słynnego klubu La Manga i 1 km od piaszczystych plaż ciepłego Mar Menor i 3 km od pięknego Morza Śródziemnego.
Wioska jest kwitnącym środowiskiem typowo hiszpańskim, oferującym duży wybór barów tapas, restauracji i wielu udogodnień. W każdy wtorek odbywa się cotygodniowy targ, który jest bardzo popularny wśród mieszkańców i turystów.
Do historycznego portu w Kartagenie można dojechać w 20 minut.
Lotniska: Regionalne lotnisko w Murcji (Corvera) oddalone jest o 35 minut jazdy samochodem, a lotnisko w Alicante o 75 minut jazdy samochodem.









