NOWE WILLE W LOS ALCAZARES
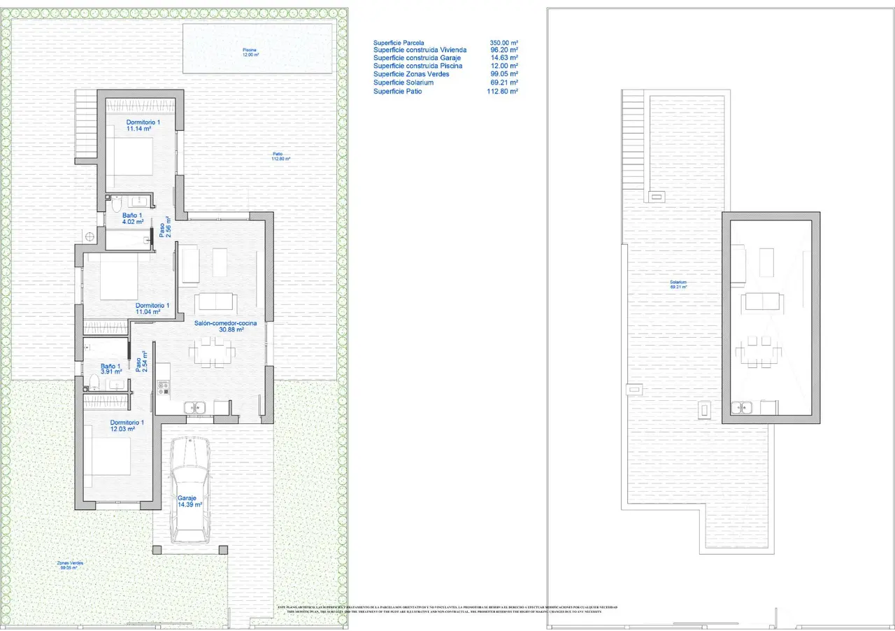
New Build detached villa build on the generous plot of 350m2 in Los Alcazares.
Willa posiada 3 sypialnie i 2 łazienki, kuchnię na otwartym planie z częścią wypoczynkową, wyposażone szafy, solarium, prywatny ogród z miejscem parkingowym i miejscem na basen.
Opcje dla prywatnego basenu za dodatkową opłatą.
Przestronny salon ma duże przesuwne drzwi na taras.
Dużo tarasów z przodu i z tyłu zapewniają, że właściciele mogą opalać się przez cały dzień.
To wille mają nowoczesne wyposażone kuchnie z wyborem kolorów dla jednostek kuchennych i płytek ściennych w obu kuchniach i łazienkach, a także podłogi i tarasy.
Residential willi znajduje się 1 km od plaży i miasta Los Alcázares, gdzie można uprawiać różne sporty wodne, w otoczeniu kilku pól golfowych.
Miasto Cartagena mniej niż 15 minut samochodem i 30 minut od lotniska Murcia Corvera.












