KLUCZ GOTOWY WILLA W FUENTE ALAMO, MURCIA
Rezydencja kamienic, niezależnych i bliźniaczych willi w Fuente Álamo, Murcia.
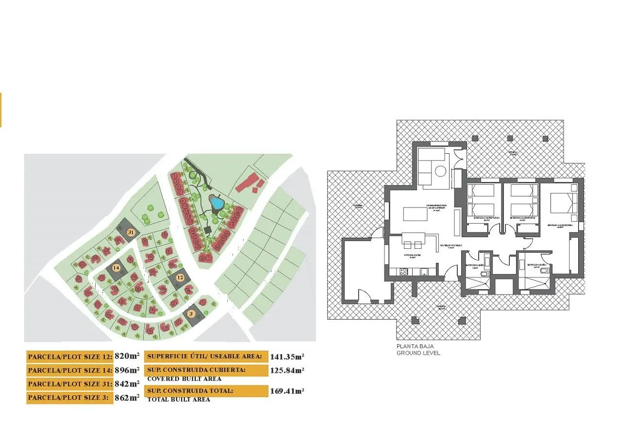
Do wyboru jest siedem różnych modeli domów, zaprojektowanych tak, aby zaspokoić gust każdego.
Rustykalne projekty w połączeniu z najwyższej jakości materiałami i skupieniem się na wygodnej przestrzeni życiowej każdy znajdzie coś dla siebie.
Mieszkańcy tej prywatnej społeczności pięknych, przestronnych domów będą mogli również cieszyć się własnymi wspólnymi ogrodami i basenami.
Ta niezwykła willa projektowa posiada 3 sypialnie i 2 łazienki, niezależną kuchnię, salon z drzwiami tarasowymi prowadzącymi na zadaszoną werandę.
Opcja prywatnego basenu za dodatkową opłatą.
Fuente Álamo de Murcia to miasto i gmina w regionie Murcja, w południowej Hiszpanii. Znajduje się 22 km na północny zachód od Cartageny i 35 km na południowy zachód od Murcji.
Miasto leży w basenie Mar Menor otoczonym przez góry Algarrobo, Los Gómez, Los Victorias i Carrascoy.
Woda z tych gór spływa do Rambla de Fuente Álamo, a następnie do Mar Menor. 
Fuente Álamo znajduje się 30 minut od lotniska Murcia – Corvera.

 
								




































 
					    					    