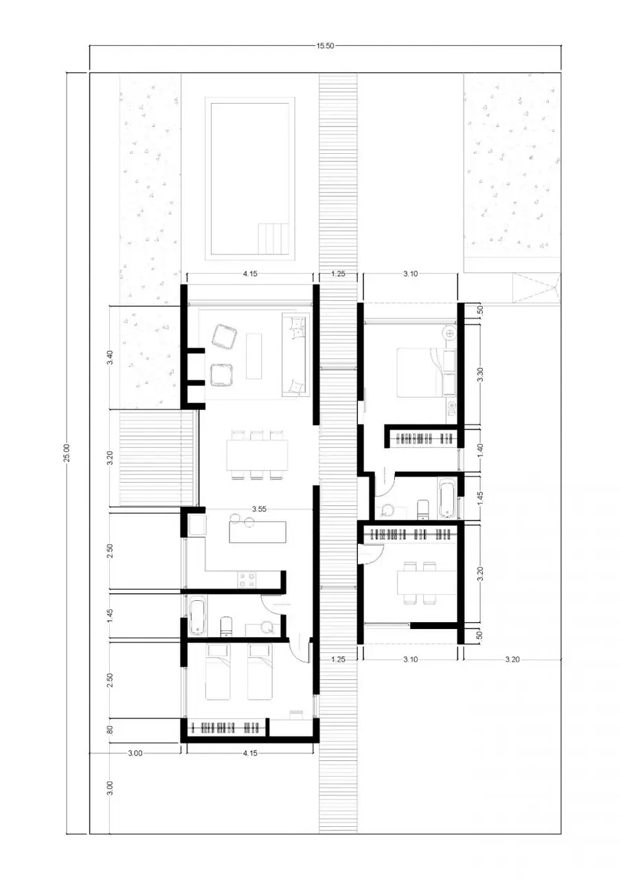
WILLA IBIKENSKA W TRADYCYJNEJ HISZPAŃSKIEJ WIOSCE
Willa jednopiętrowa z dużą działką o powierzchni 397 m2 w Fortunie, w pobliżu Balneario de Leana.
Willa w stylu ibiceneckim podzielona na 2 białe sześciany, ze ścianami z naturalnego kamienia.
Nieruchomość położona jest w spokojnej i wiejskiej okolicy, w odległości 1 km znajduje się Balneario de Leana, a w pobliżu jest kilka hoteli i restauracji.
W odległości niecałych 3 km znajduje się miasto Fortuna, w którym można zrobić codzienne zakupy, a 25 km – miasto Murcia, gdzie znajduje się bogata oferta gastronomiczna i rozrywkowa.






