preloader

Dom wolnostojący

Costa Blanca North, Finestrat, Hiszpania

Szczegóły nieruchomości
Sprzedaż 760 000 EUR

RYNEK PIERWOTNY WILLE W FINESTRAT

Rynek Pierwotny nowoczesne wille w Finestrat.

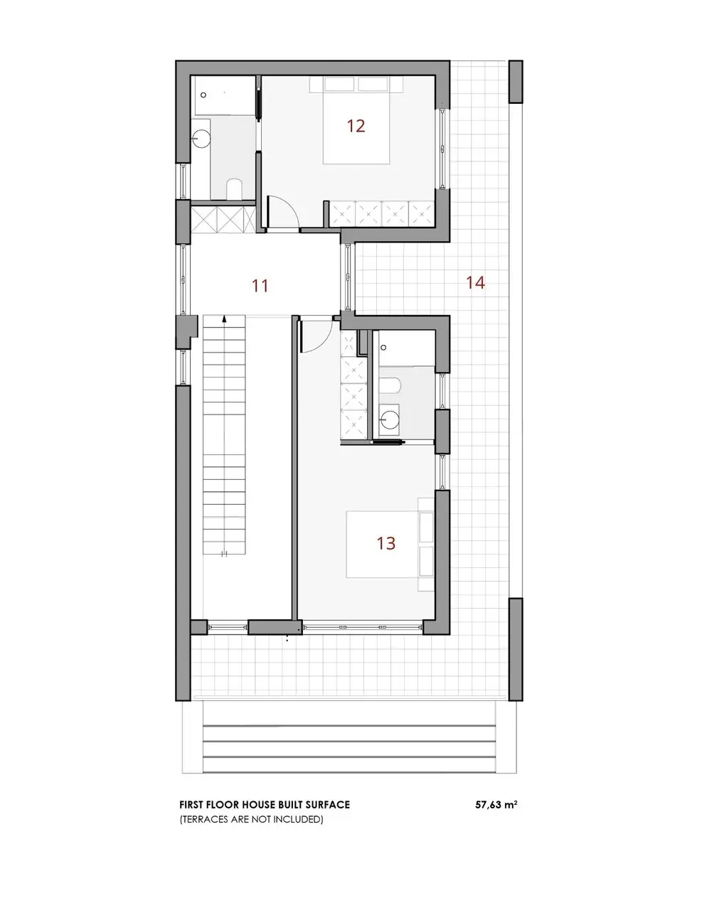
Wille z 3 sypialniami i 3 łazienkami, kuchnią na otwartym planie z częścią wypoczynkową, tarasem ze wspaniałym widokiem na Benidorm, prywatnym ogrodem z basenem i miejscem parkingowym.

Willa została zaprojektowana jako przestrzeń, po której można chodzić, z wewnętrznymi i zewnętrznymi ścieżkami, które zapewniają niezależny dostęp do każdego piętra. Projekt ten oferuje różne perspektywy kompleksu architektonicznego i jego otoczenia, z morzem i Sierra Cortina służącymi jako malownicze tło.

Główne wejście do willi znajduje się w dolnej części działki, z obszernym parkingiem na dwa pojazdy. Element wodny z leżakami wprowadza na parter, charakteryzujący się szerokimi ścianami ozdobionymi murami. Z salonu płynnie rozciąga się taras, możliwy dzięki dużemu składanemu oknu. Drewniane okiennice na murowanych ścianach zapewniają częściowo zadaszoną przestrzeń zewnętrzną dla dodatkowego komfortu.

Basen z akwamarynowymi odcieniami i gresową okładziną sąsiaduje z chodnikiem wykonanym z antypoślizgowych płytek porcelanowych o wyglądzie przypominającym drewno.
Przestrzeń ta obejmuje również miejsce do grillowania, które można dostosować do potrzeb użytkownika, z dostępem z utwardzonej strefy przez naturalny teren.

Finestrat znajduje się w regionie Marina Baixa na Costa Blanca, w pobliżu sąsiedniego Benidorm i około 40 kilometrów od miasta Alicante i międzynarodowego lotniska.

Wioska położona jest na zboczu góry Puig Campana i oferuje piękne widoki na góry, wybrzeże i Morze Śródziemne.

Benidorm znajduje się zaledwie pięć minut jazdy od nieruchomości i oferuje wszystkie potrzebne usługi, w tym sklepy, bary, restauracje, supermarkety, banki, apteki i kilka prywatnych szkół międzynarodowych.

  • Nieruchomość

    Dom wolnostojący
  • Sypialnie

    3
  • Łazienki

    3
  • Powierzchnia

    198 m²
Dodatkowe informacje
  • Rynek:pierwotny
  • Powierzchnia działki:564 m²
  • Ogród:tak
  • Taras:60 m²
  • Odległość do plaży:3000 metrów
  • Powierzchnia użytkowa :138 m²
Lokalizacja na mapie
Inne nieruchomości

132 m²

399 000 EUR

Dom wolnostojący

Costa Calida, San Javier, Hiszpania

  • Sypialnie

    3

  • Łazienki

    2

  • Basen

    Tak

121 m²

575 000 EUR

Dom wolnostojący

Costa Blanca South, Pilar de La Horadada, Hiszpania

  • Sypialnie

    4

  • Łazienki

    3

  • Basen

    Tak

Mateusz Wojciechowski

User Login

Lost your password?
Cart 0