preloader

Dom wolnostojący

Costa Blanca North, Finestrat, Hiszpania

Szczegóły nieruchomości
Sprzedaż 1 050 000 EUR

RYNEK PIERWOTNY WILLE W FINESTRAT

Rynek Pierwotny nowoczesne wille w Finestrat.

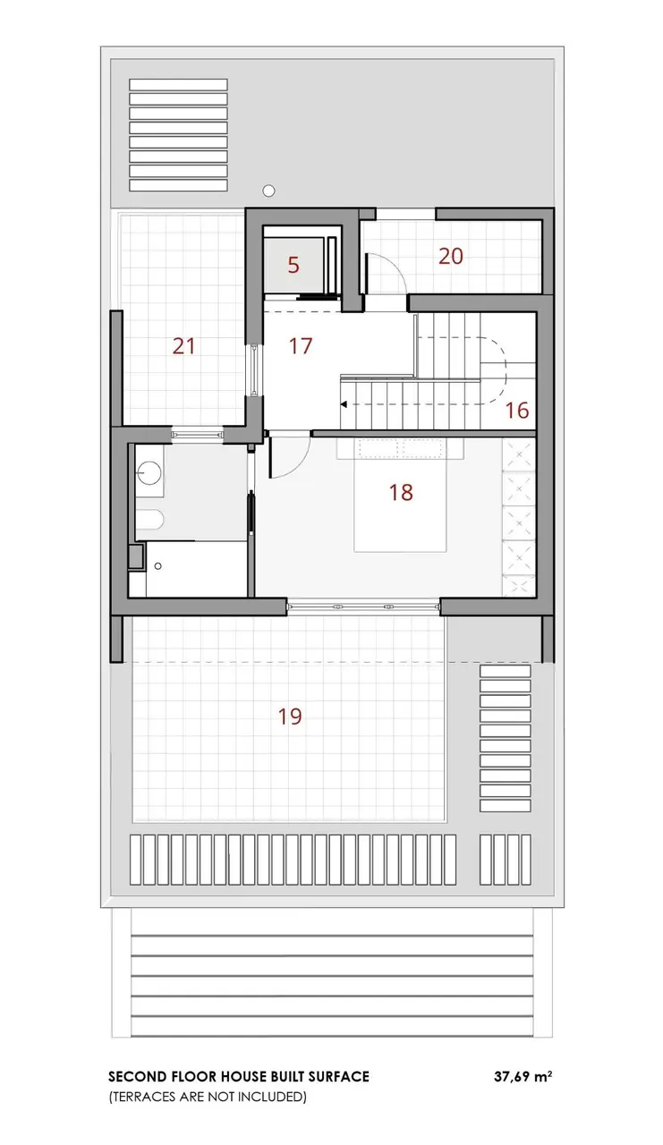
Wille z 4 sypialniami i 4 łazienkami, kuchnią na otwartym planie z częścią wypoczynkową, tarasem ze wspaniałym widokiem na Benidorm, prywatnym ogrodem z basenem i miejscem parkingowym.

Boczny ogród, ozdobiony kaktusami i białym żwirem, łączy poziom dostępu 1 z głównym piętrem (poziom O).

Wykorzystanie naturalnej trawy w pozostałej części terenu jest prezentowane jako dodatkowa cecha dzięki starannie zaprojektowanemu projektowi krajobrazu.

Każdy poziom jest zaakcentowany materiałem, który podkreśla jego istotę. Poziom O jest pokryty naturalnym wapieniem, zapewniając wsparcie dla całej konstrukcji.
Poziom 1, z jednowarstwowym wykończeniem i drewnianymi okiennicami, chroni najbardziej intymną część rezydencji.
Wreszcie poziom 2, na którym znajduje się główna sypialnia, otwiera się na przestronny taras i jest wykończony teksturowaną jednowarstwową okładziną w ciepłym odcieniu.

Śródziemnomorska estetyka została osiągnięta dzięki doskonałemu połączeniu tradycji, nowoczesnej architektury i natury.

Finestrat znajduje się w regionie Marina Baixa na Costa Blanca, w pobliżu sąsiedniego Benidorm i około 40 kilometrów od miasta Alicante i międzynarodowego lotniska.

Wioska położona jest na zboczu góry Puig Campana i oferuje piękne widoki na góry, wybrzeże i Morze Śródziemne.

Benidorm znajduje się zaledwie pięć minut jazdy od nieruchomości i oferuje wszystkie potrzebne usługi, w tym sklepy, bary, restauracje, supermarkety, banki, apteki i kilka prywatnych szkół międzynarodowych.

  • Nieruchomość

    Dom wolnostojący
  • Sypialnie

    4
  • Łazienki

    4
  • Powierzchnia

    315 m²
Dodatkowe informacje
  • Rynek:pierwotny
  • Powierzchnia działki:620 m²
  • Ogród:tak
  • Taras:107 m²
  • Odległość do plaży:3000 metrów
  • Powierzchnia użytkowa :173 m²
Lokalizacja na mapie
Inne nieruchomości

196 m²

1 175 000 EUR

Dom wolnostojący

Costa Blanca South, Orihuela Costa, Hiszpania

  • Sypialnie

    4

  • Łazienki

    2

  • Basen

    Tak

136 m²

435 000 EUR

Dom wolnostojący

Costa Blanca South, Pilar de La Horadada, Hiszpania

  • Sypialnie

    3

  • Łazienki

    2

  • Basen

    Tak

Marcin Halarewicz

User Login

Lost your password?
Cart 0