Luksusowe nowoczesne wille z widokiem na pole golfowe w Ciudad Quesada
Ekskluzywna nowa inwestycja z widokiem na pole golfowe La Marquesa Golf
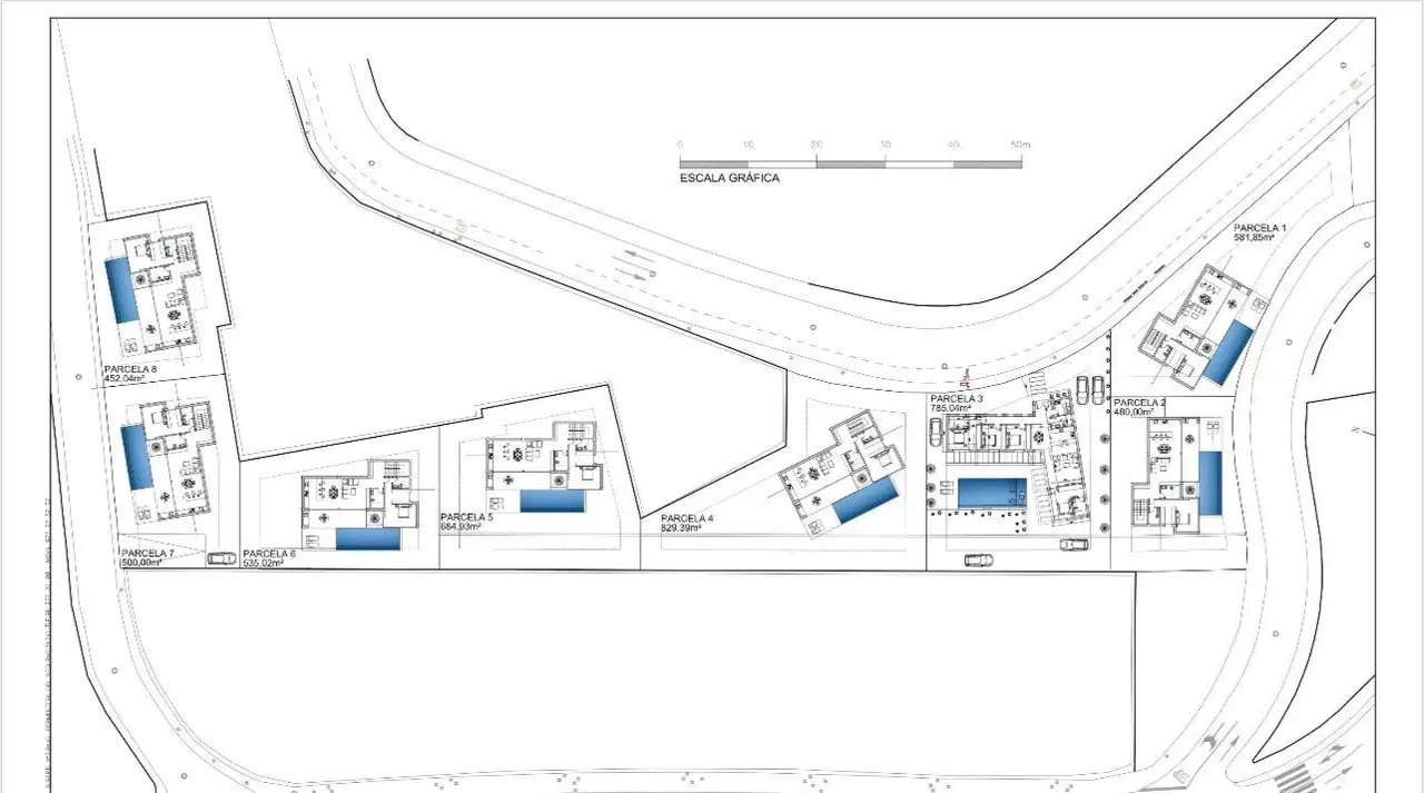
Odkryj ekskluzywną kolekcję siedmiu luksusowych willi w Ciudad Quesada, oferujących zapierające dech w piersiach widoki na prestiżowe pole golfowe La Marquesa. Te innowacyjne, przyjazne dla środowiska domy zostały zaprojektowane przy użyciu materiałów o zerowej emisji i samowystarczalnej energii słonecznej, co czyni je pierwszymi tego rodzaju w Hiszpanii.
Eleganckie i zrównoważone życie
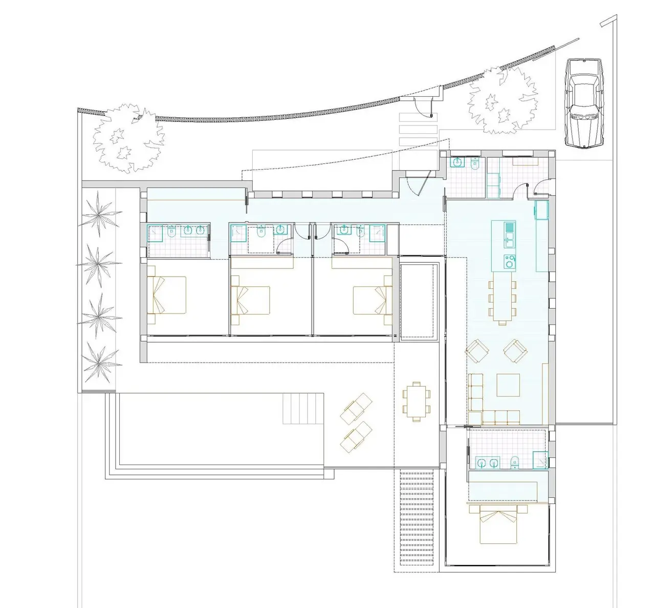
Każda willa jest zbudowana z wysokiej jakości wykończeń i zaprojektowana z myślą o nowoczesnym komforcie:
3 do 5 przestronnych sypialni i 3 do 5 eleganckich łazienek
Prywatny podgrzewany basen i w pełni wyłożony kafelkami taras na parterze
Rozległe solarium na dachu z panoramicznym widokiem na pole golfowe
Inteligentny system domowy do sterowania oświetleniem, klimatem i bezpieczeństwem
Ogrzewanie i chłodzenie podłogowe zapewniające komfort przez cały rok
W pełni wyposażona kuchnia z wysokiej jakości urządzeniami i oświetleniem LED
Opcjonalna piwnica (za dodatkową opłatą) – idealna na siłownię, strefę rozrywki lub dodatkową przestrzeń mieszkalną
Doskonała lokalizacja w Ciudad Quesada
Wille te znajdują się w drugiej linii od pola golfowego, w spokojnym i prestiżowym otoczeniu, a jednocześnie blisko wszystkich niezbędnych usług. Ciudad Quesada to poszukiwana dzielnica mieszkaniowa na Costa Blanca, znana z doskonałych udogodnień, śródziemnomorskiego klimatu i wysokiej jakości życia.
Odległości do najważniejszych atrakcji:
Pole golfowe La Marquesa – 2 minuty
Plaże Guardamar del Segura – 10 km (10 minut)
Centrum miasta Torrevieja – 15 km (15 minut)
Lotnisko Alicante – 38 km (30 minut)
Centra handlowe (Habaneras, Zenia Boulevard) – 15-20 minut
Przystanie i porty w Torrevieja i Guardamar – 15 minut
Idealny dom dla golfa i śródziemnomorskiego stylu życia
Te luksusowe wille oferują idealną równowagę między nowoczesnym designem, zrównoważonym rozwojem i doskonałą lokalizacją. Niezależnie od tego, czy jesteś entuzjastą golfa, szukasz miejsca na wakacje, czy szukasz stałej rezydencji pod hiszpańskim słońcem, te domy zapewniają niezrównaną jakość życia.
Nie przegap tej wyjątkowej okazji! Skontaktuj się z nami już dziś, aby uzyskać więcej informacji lub umówić się na oglądanie.

























