PIĘKNA WSPANIAŁA WILLA Z WIDOKAMI NA POLE GOLFOWE „LA MARQUESA”!
Ta piękna willa, położona 50 metrów od pola golfowego La Marquesa, oprócz jasnych i pięknych widoków i oferująca spokój przebywania w cichym otoczeniu, znajduje się kilka metrów od centrum handlowego ze sklepami, supermarketami, barami i międzynarodowymi restauracjami. Zaledwie 5 minut od miasta Rojales ze wszystkimi usługami i 15 minut od spektakularnych plaż oznaczonych niebieską flagą Guardamar del Segura. Lotnisko Alicante-Elche oddalone jest od hotelu o 35 minut.
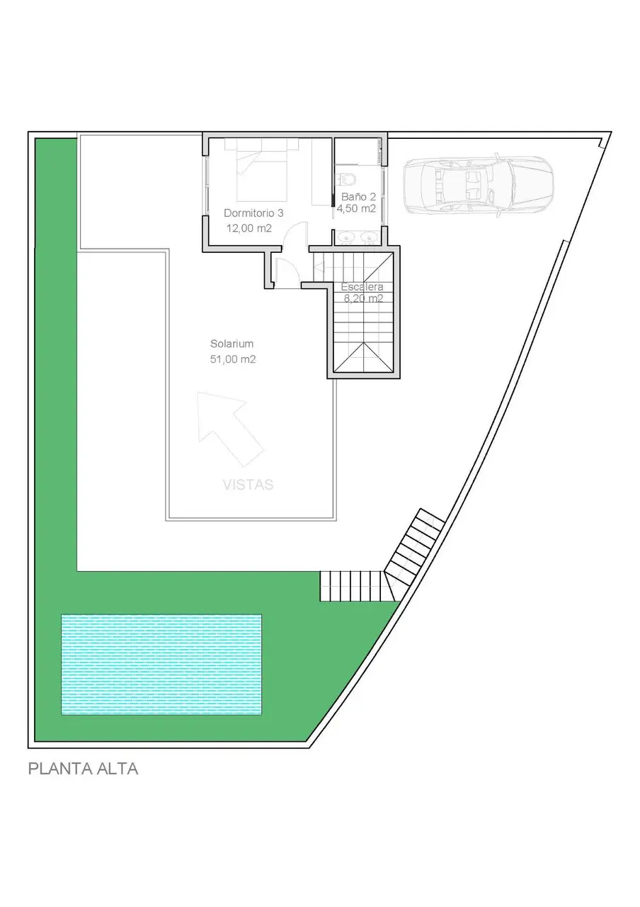
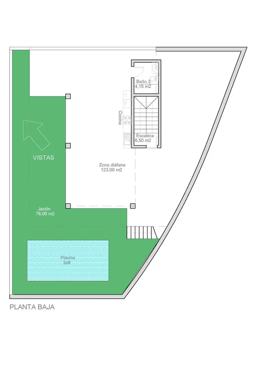
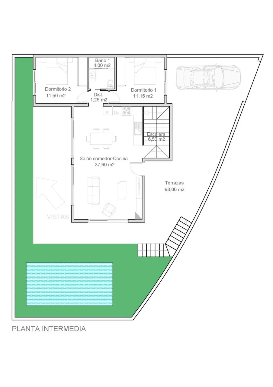
Willa ma 335 m2 powierzchni działki, 433 m2 powierzchni zabudowy, rozmieszczone na 3 kondygnacjach, z których jedno to półpiwnica prześwitowa o powierzchni 126 m2. Willa posiada 3 sypialnie i 2 łazienki. Basen o wymiarach 3×6 m oraz duże tarasy w ogrodzie i strefie basenowej pozwolą cieszyć się słońcem i klimatem Costa Blanca przez cały rok. Dodatkowo willa posiada solarium oraz duży parking.
Zamieszkaj w dużej nowoczesnej willi, ciesząc się golfem, plażą, klimatem i śródziemnomorskim stylem życia!




































