Ekskluzywne wille i quady w zabudowie bliźniaczej w Bigastro, Alicante
Domy w stylu śródziemnomorskim w sercu Vega Baja
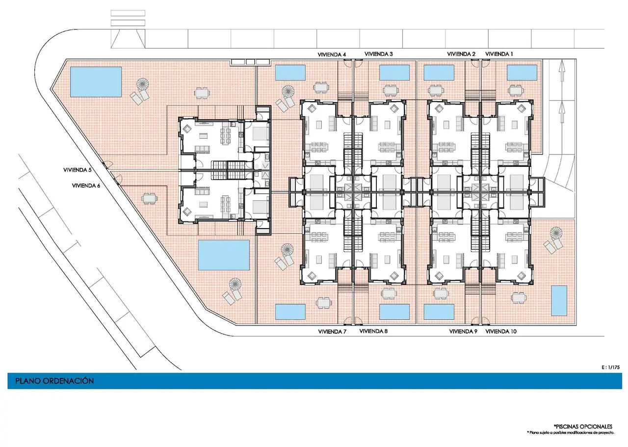
Ten nowy kompleks mieszkaniowy w Bigastro, uroczej wiosce w Vega Baja, oferuje 8 quadów i 2 wille w zabudowie bliźniaczej zaprojektowane w eleganckim stylu śródziemnomorskim. Położone w cichej i dobrze skomunikowanej okolicy, nieruchomości te są idealne dla osób poszukujących idealnego połączenia komfortu, prywatności i bliskości wszystkich udogodnień.
Przestronny i funkcjonalny projekt
Każda nieruchomość została zaprojektowana tak, aby oferować przestronność i komfort, z 4 sypialniami i 3 łazienkami rozmieszczonymi na 2 piętrach.
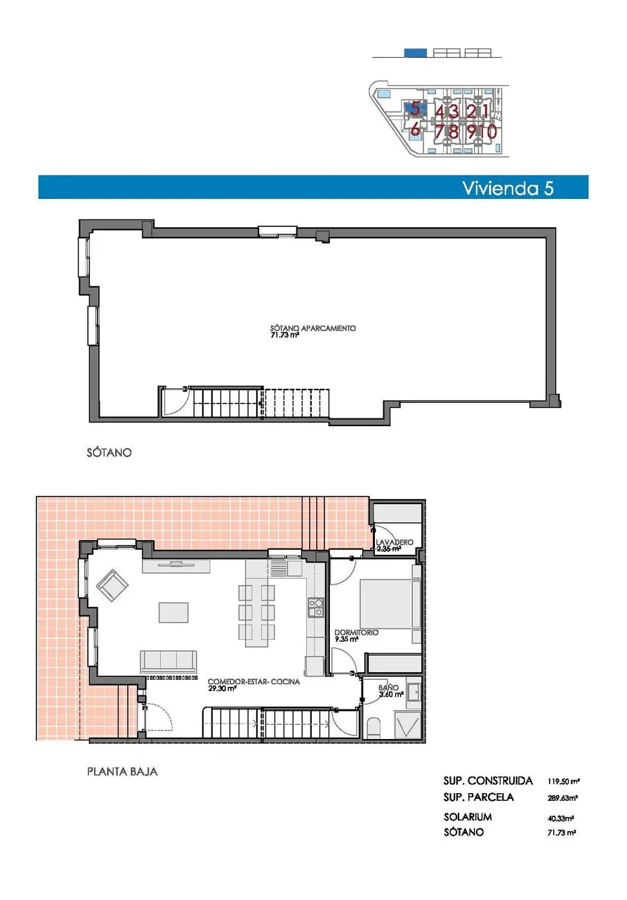
Parter: jedna sypialnia, łazienka, kuchnia na otwartym planie otwarta na salon, pralnia i dostęp do ogrodu.
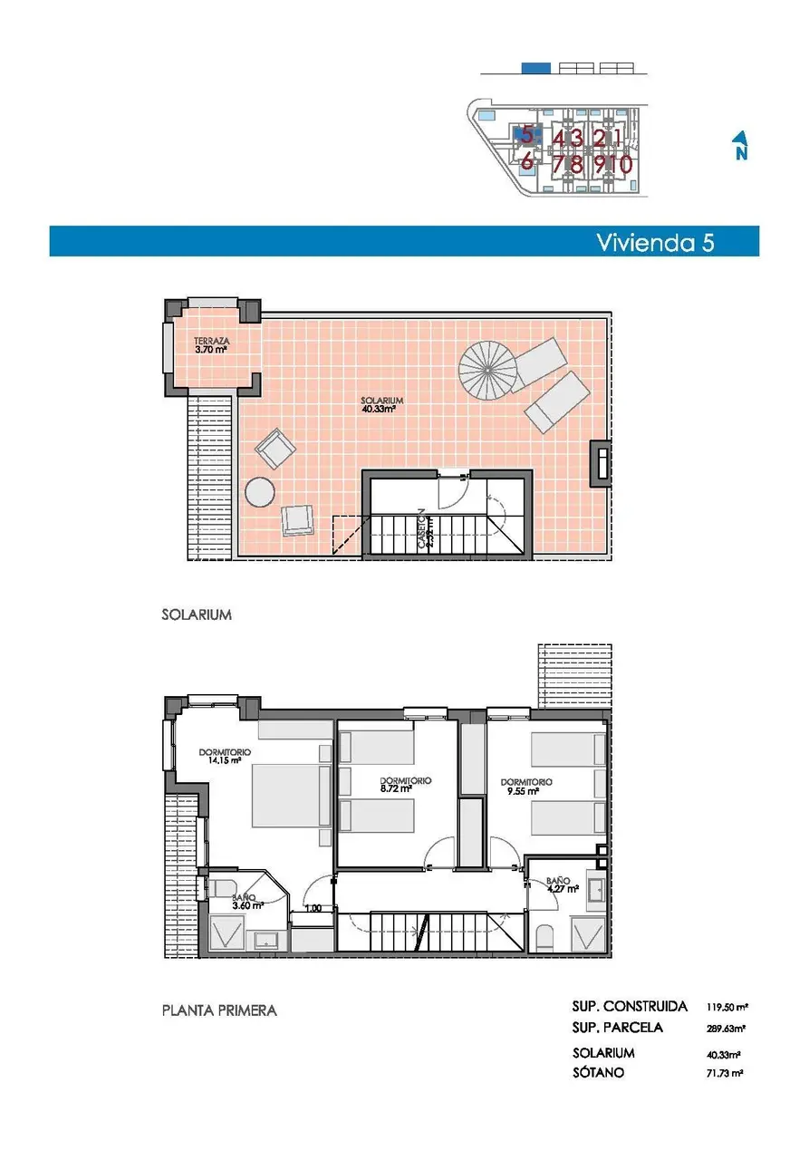
Na piętrze: 3 sypialnie, w tym główna sypialnia z łazienką.
Prywatne solarium o powierzchni 40 m², idealne do podziwiania śródziemnomorskiego klimatu i otwartych widoków.
Prywatny ogród z opcją basenu, dostępny za dodatkową opłatą.
Prywatny garaż o powierzchni ponad 60 m² w piwnicy, z bezpośrednim dostępem do nieruchomości.
Bigastro: spokój i łączność
Bigastro to przytulna gmina na południu Alicante, znana ze spokojnej okolicy i doskonałego połączenia z głównymi miastami i plażami Costa Blanca.
Orihuela – 5 km (5 minut jazdy samochodem).
Plaże Guardamar – 25 km (15 minut jazdy samochodem).
Torrevieja – 30 km (25 minut jazdy samochodem).
Lotnisko Alicante – 55 km (30 minut jazdy samochodem).
Centrum handlowe Zenia Boulevard – 30 km (25 minut jazdy samochodem).
Gmina posiada wszystkie niezbędne usługi, takie jak supermarkety, szkoły, ośrodki sportowe i bogatą ofertę gastronomiczną, co czyni ją idealnym miejscem zarówno na pobyt stały, jak i na drugi dom.
Odkryj swój nowy dom na Costa Blanca
Jeśli szukasz nowoczesnego i przestronnego domu w spokojnej, ale dobrze skomunikowanej lokalizacji, te wille i quady w Bigastro są idealnym wyborem. Skontaktuj się z nami już dziś, aby uzyskać więcej informacji lub umówić się na oglądanie.




















