NOWA LUKSUSOWA WILLA W BENISSIE
New Build Luksusowa willa w Benissa z widokiem na morze i Peñón de Ifach.
Ta willa, z wyeksponowanymi betonowymi panelami, ma 4 piętra połączone windą i wewnętrznymi schodami.
Na parterze znajduje się duży, otwarty salon-jadalnia-kuchnia i toaleta dla gości.
Kuchnia jest w pełni wyposażona i ma wyspę kuchenną. Przesuwane drzwi na wysokości sufitu dają bezpośredni dostęp do przestronnego tarasu i basenu. Na piętrze znajdują się dwie sypialnie z łazienkami i tarasem.
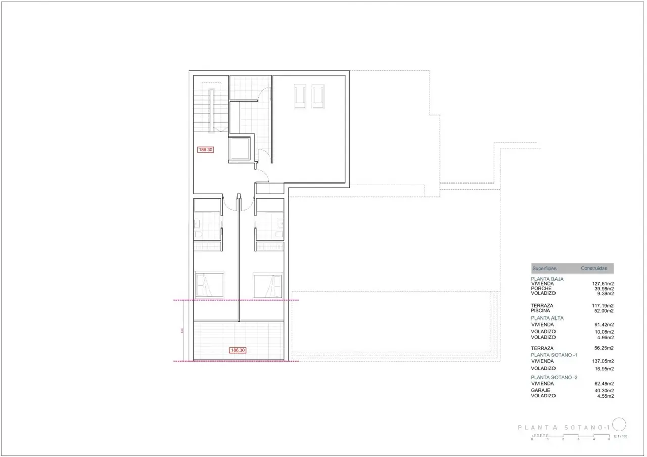
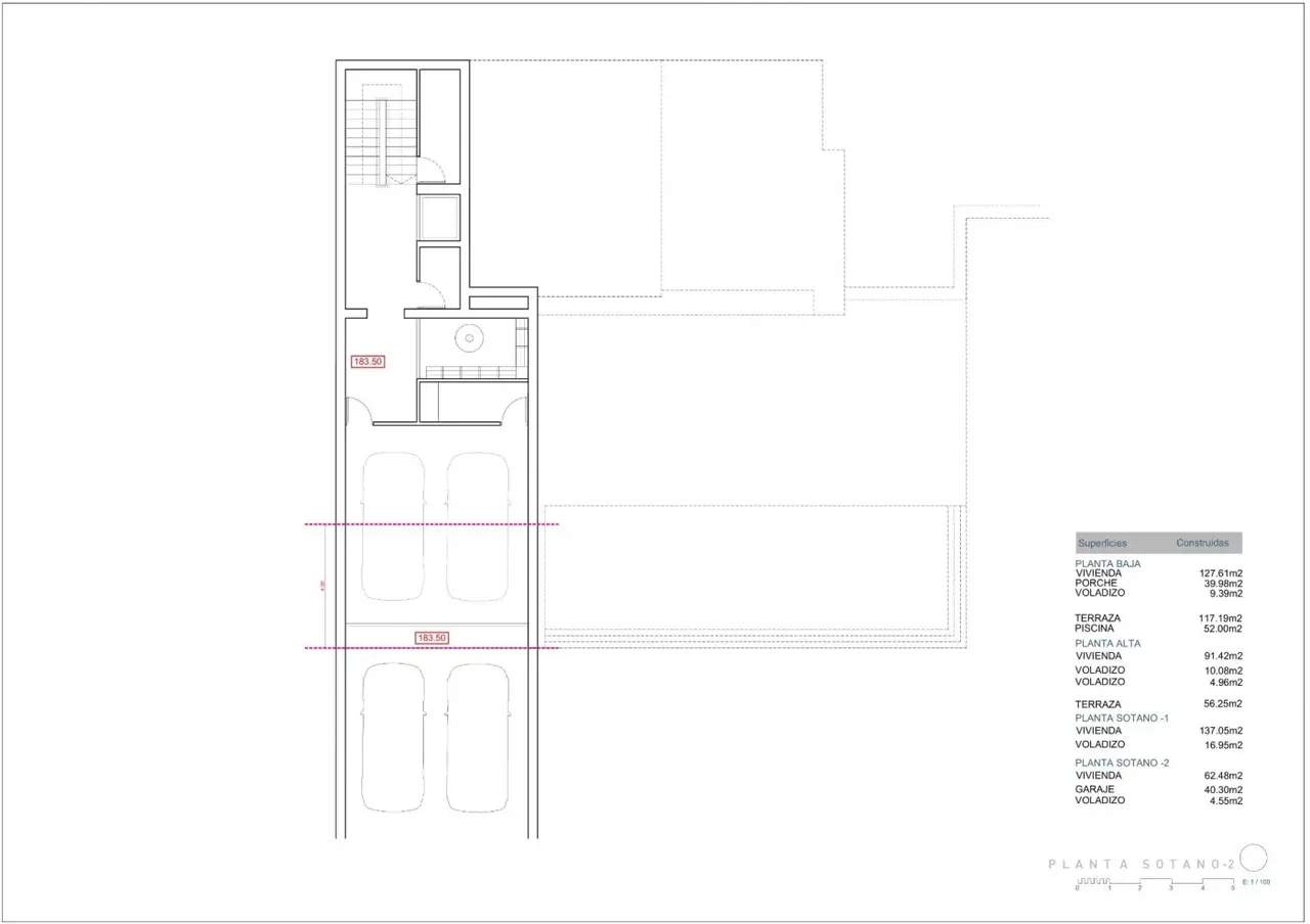
Nieruchomość posiada 2 piwnice.
W piwnicy nr 1 znajdują się kolejne dwie sypialnie, każda z własną łazienką oraz pralnia.
W piwnicy nr 2 znajduje się siłownia, piwnica i garaż na 4 samochody.
Dom jest wyposażony w klimatyzację (z kanałami) i centralne ogrzewanie z pompą ciepła.
Posiada automatyczną bramę wjazdową z osobnym wejściem dla pieszych i domofonem. Na tym samym poziomie co główny dom znajduje się basen.
Obejmuje stolarkę zewnętrzną z automatycznymi okiennicami i moskitierami w sypialniach, wyposażone szafy z modułami i podstawową instalację alarmową.
Benissa znajduje się na północnym krańcu Costa Blanca, tuż przy autostradzie A-7; podróż do i z lotniska w Alicante trwa nieco ponad godzinę. Miasto jest małe, ale urzeka średniowieczną architekturą i uroczymi placami.
Chociaż od morza dzieli je tylko 5 kilometrów, najbliższe plaże znajdują się w odległości około 11 kilometrów, a nadmorskie miasteczka Calpe (na południu) i Moraira (na północnym wschodzie) – około 12 kilometrów.
Widoki na Morze Śródziemne, pogoda, dzika przyroda, jakość światła, architektura miasta, Benissa uwiodą Cię.
Lotnisko w Alicante znajduje się w odległości 1 godziny drogi.














