preloader

Dom wolnostojący

Costa Calida - Inland, Baños y Mendigo, Hiszpania

Szczegóły nieruchomości
Sprzedaż 481 500 EUR

RYNEK PIERWOTNY WILLE W OŚRODKU GOLFOWYM ALTAONA, MURCJA

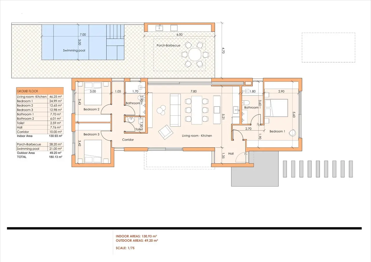
Rynek Pierwotny budynek to niezwykły kompleks willi położony w pięknym kurorcie Altaona w Murcji. Ta ekskluzywna enklawa zapewnia idealne warunki do doświadczania płynnego połączenia luksusowego życia i spokojnego śródziemnomorskiego stylu życia. Poczuj, jak krajobraz wchodzi do domu przez duże okna. Ogród zyskuje wielką obecność i stanowi część samej istoty willi. Wewnątrz są przestronne i jasne, zaprojektowane tak, aby śródziemnomorskie światło zalewało ich pokoje.

Nowe wille z otwartą kuchnią, 3 sypialniami, 2 łazienkami, toaletą dla gości, tarasem, prywatnym ogrodem z basenem i miejscem parkingowym.

Cechy:
– Nieruchomości posiadają certyfikat energetyczny A.
– Klimatyzacja kanałowa z pompą ciepła. W całym domu z wyjątkiem łazienek.
– Elektryczne ogrzewanie podłogowe w salonie i łazienkach z indywidualnym termostatem na strefę.
– System wymiany powietrza w kuchni, łazienkach, pralni i toalecie dla gości.
– Kuchnia Zawiera okap i elektryczną płytę indukcyjną z 3 punktami gotowania.
– Oświetlenie LED w salonie, przedpokoju i na zewnątrz. Reszta pomieszczeń jest przygotowana do zainstalowania oświetlenia przez przyszłego właściciela.
– Gniazda USB we wszystkich sypialniach.
– Elektroniczny domofon zapewniający dostęp z zewnątrz do wewnętrznej ścieżki. Dzwonek do drzwi przy wejściu na posesję.
– System automatyki domowej z dwoma inteligentnymi przełącznikami.
– Prywatny ogród krajobrazowy z systemem nawadniania kropelkowego i basenem.
– Zewnętrzne ogrodzenie urbanizacji.
– Bramy wjazdowe do urbanizacji: Metalowa brama przesuwna z systemem zdalnego otwierania.

Rezydencja położona w Altaona Golf, zaledwie 15 minut jazdy samochodem od centrum stolicy Murcji i 20 minut od plaż, może cieszyć się spokojem i bezpieczeństwem oferowanym przez pole golfowe z 18 dołkami oraz komfortem życia w pobliżu wszystkich usług.
Lotnisko Corvera w Murcji oddalone jest o zaledwie 15 minut jazdy samochodem.

  • Nieruchomość

    Dom wolnostojący
  • Sypialnie

    3
  • Łazienki

    2
  • Powierzchnia

    147 m²
Dodatkowe informacje
  • Rynek:pierwotny
  • Powierzchnia działki:450 m²
  • Ogród:tak
  • Taras:28 m²
  • Odległość do plaży:25000 metrów
  • Powierzchnia użytkowa :125 m²
Lokalizacja na mapie
Inne nieruchomości

199 m²

382 000 EUR

Dom wolnostojący

Costa Blanca South - Inland, Pinoso, Hiszpania

  • Sypialnie

    3

  • Łazienki

    2

  • Basen

    Tak

130 m²

559 000 EUR

Dom wolnostojący

Costa Blanca South, Pilar de La Horadada, Hiszpania

  • Sypialnie

    3

  • Łazienki

    2

  • Basen

    Tak

Marcin Halarewicz

User Login

Lost your password?
Cart 0