Ekskluzywne nowe wille w okolicy pola golfowego Algorfa
Odkryj te wspaniałe nowo wybudowane wille w Algorfie, położone w spokojnym otoczeniu jednego z najbardziej prestiżowych ośrodków golfowych w Hiszpanii, La Finca Golf & Spa Resort. Położona w południowej części prowincji Alicante, ta ekskluzywna inwestycja łączy luksusowe życie z korzyściami płynącymi z udogodnień w stylu kurortu, tworząc idealny dom dla entuzjastów golfa i osób poszukujących relaksującego śródziemnomorskiego stylu życia.
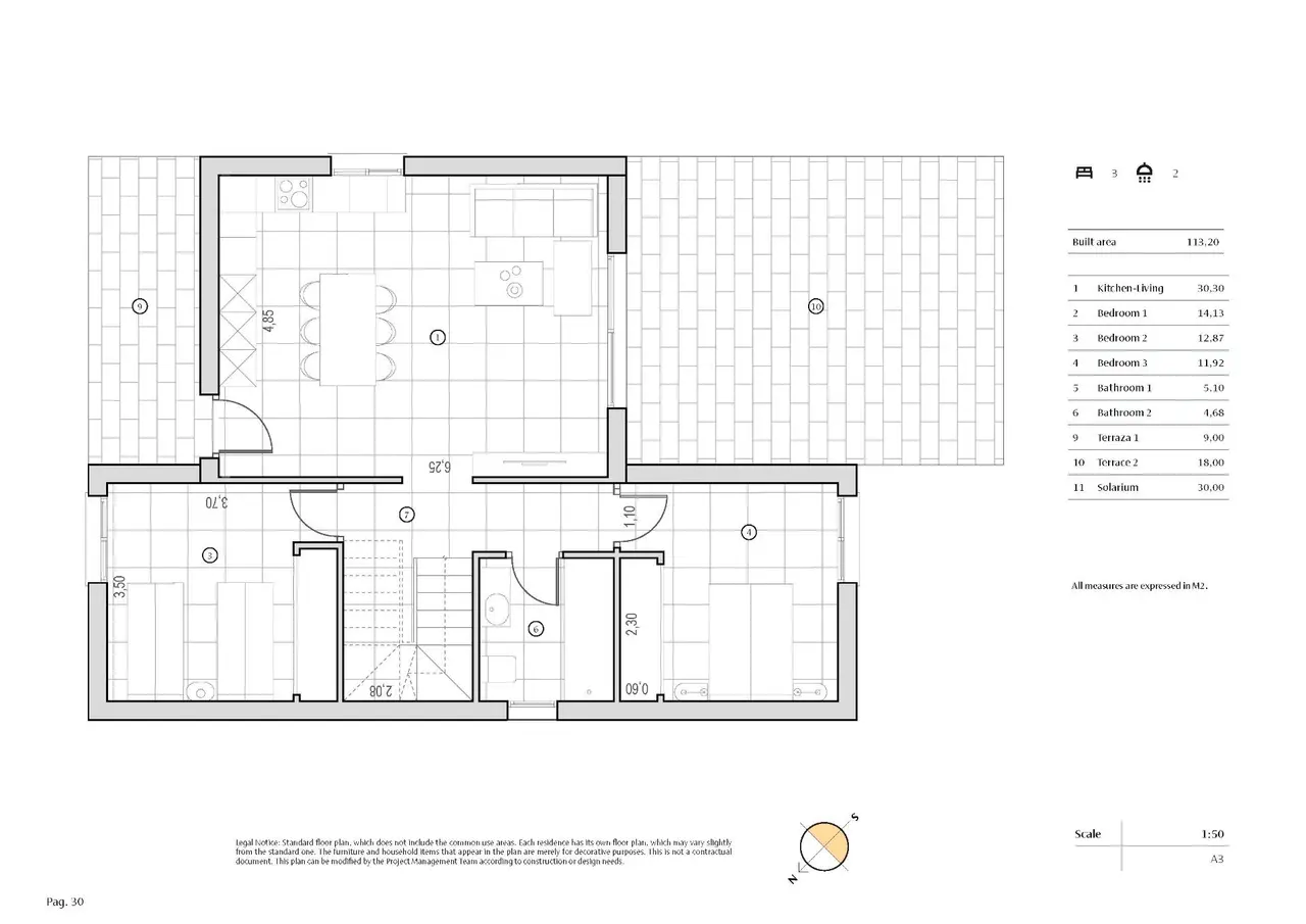
Eleganckie wille z 3 sypialniami, prywatnym basenem i nowoczesnym designem
Każda willa została starannie zaprojektowana na dwóch przestronnych piętrach, na których znajdują się 3 sypialnie i 2 łazienki. Kuchnia na otwartym planie płynnie przechodzi w część dzienną, gdzie duże okna i przesuwane szklane drzwi zapewniają mnóstwo naturalnego światła i bezpośredni dostęp do tarasu i prywatnego basenu. Na działce znajduje się wygodne prywatne miejsce parkingowe, co zwiększa łatwość i ekskluzywność tych domów.
Funkcje premium i technologia inteligentnego domu
Wille te wyposażone są w szereg wysokiej klasy funkcji zapewniających maksymalny komfort i bezpieczeństwo. Ciesz się wygodą prywatnego parkingu wewnętrznego, elektrycznych rolet, klimatyzacji kanałowej i zaawansowanego systemu automatyki domowej. Dodatkowo, w pełni wyposażony system alarmowy zapewnia spokój ducha. Orientacja południowa / południowo-zachodnia pozwala na optymalne naturalne oświetlenie przez cały rok, zmniejszając zużycie energii, zapewniając ciepło i jasność od wschodu do zachodu słońca.
Jasne, otwarte przestrzenie mieszkalne z tradycyjnymi akcentami
Zaprojektowane w koncepcji otwartej, domy te wykorzystują duże okna i drzwi przesuwne, aby promować wentylację krzyżową, utrzymując wnętrza świeże i wypełnione naturalnym światłem. Projekt architektoniczny łączy nowoczesną estetykę z tradycyjnymi elementami, takimi jak kamienne akcenty na elewacji i drewniane detale, tworząc ciepłą, zachęcającą atmosferę. Z oceną EPC A, wille te oferują efektywność energetyczną i zrównoważony rozwój, co czyni je przyjaznym dla środowiska wyborem dla właścicieli domów.
Doskonała lokalizacja z dostępem do plaż i kluczowych atrakcji
Położone w dobrze ugruntowanym mieście Algorfa, wille te znajdują się w odległości krótkiej przejażdżki od dziewiczych plaż Guardamar i Torrevieja, gdzie można cieszyć się ponad 300 słonecznymi dniami każdego roku. W pobliżu znajdują się centra handlowe, znakomite restauracje i tętniące życiem lokale rozrywkowe. Doskonała infrastruktura i bliskość głównych dróg, w tym autostrady AP-7, zapewniają łatwe połączenia z popularnymi miejscami, takimi jak Orihuela, Elche, Murcja i Alicante. Lotnisko w Alicante oddalone jest o zaledwie 40 km, a lotnisko w Murcji o 55 km, co ułatwia podróżowanie.
Twój śródziemnomorski dom marzeń czeka – skontaktuj się z nami już dziś
Nie przegap okazji posiadania luksusowej willi w najbardziej prestiżowym kurorcie golfowym Algorfa. Doświadcz idealnego połączenia nowoczesnego komfortu, tradycyjnego uroku i śródziemnomorskiego stylu życia. Skontaktuj się z nami już teraz, aby umówić się na oglądanie i odkryć swój wymarzony dom.






















