RYNEK PIERWOTNY KOMPLEKS MIESZKANIOWY W AGUILAS
Rynek Pierwotny ekskluzywny kompleks mieszkaniowy z apartamentami i willami w Aguilas.
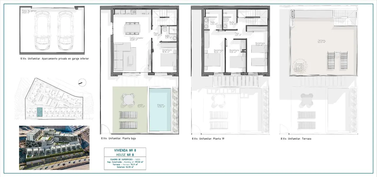
Kompleks składa się z 36 apartamentów z 3 i 2 sypialniami rozmieszczonych w 4 nowoczesnych blokach, wyposażonych w 2 wspólne baseny i wspólny garaż z miejscem parkingowym i pomieszczeniem gospodarczym dla każdej nieruchomości; oraz 10 eleganckich willi z 4 sypialniami i 3 łazienkami, każda z własnym prywatnym basenem.
Ten kompleks mieszkalny został zaprojektowany z myślą o doskonałości, oferując przestronne tarasy na parterze i pierwszym piętrze oraz solaria na wyższych piętrach, gdzie widok na horyzont staje się kanwą wrażeń.
Domy posiadają w pełni wyposażone kuchnie i łazienki oraz wstępną instalację klimatyzacji kanałowej.
Kompleks znajduje się 800 metrów od morza, obok centrum handlowego.
Aguilas znajduje się w wyjątkowej okolicy na Costa Cálida, zaledwie 50 minut od nowego lotniska w Murcji lub Almerii i 1h30 od lotniska w Alicante.
Aguilas to małe miasto z wieloma udogodnieniami, długą plażą do spacerów i relaksu na słońcu. Jest to idealna enklawa do nurkowania, sportów wodnych, turystyki pieszej i golfa.
Ma 28 kilometrów linii brzegowej, na której znajduje się 35 plaż z różnymi rodzajami piasku o różnej grubości, położonych w różnych krajobrazach, od zatoczek i dziewiczych plaż w naturalnym otoczeniu po miejskie plaże miasta Aguilas.
Ciepły pustynny klimat jest obecny przez cały rok, a średnia roczna wynosi 22º, z łagodnymi temperaturami zimą i bardzo gorącymi latem.












