NOWY BUDYNEK MIESZKALNY Z APARTAMENTAMI TYPU BUNGALOW W LOS BALCONES, TORREVIEJA
Nowy budynek mieszkalny kompleks z wspaniałymi widokami na różowe słone jezioro w Los Balcones.
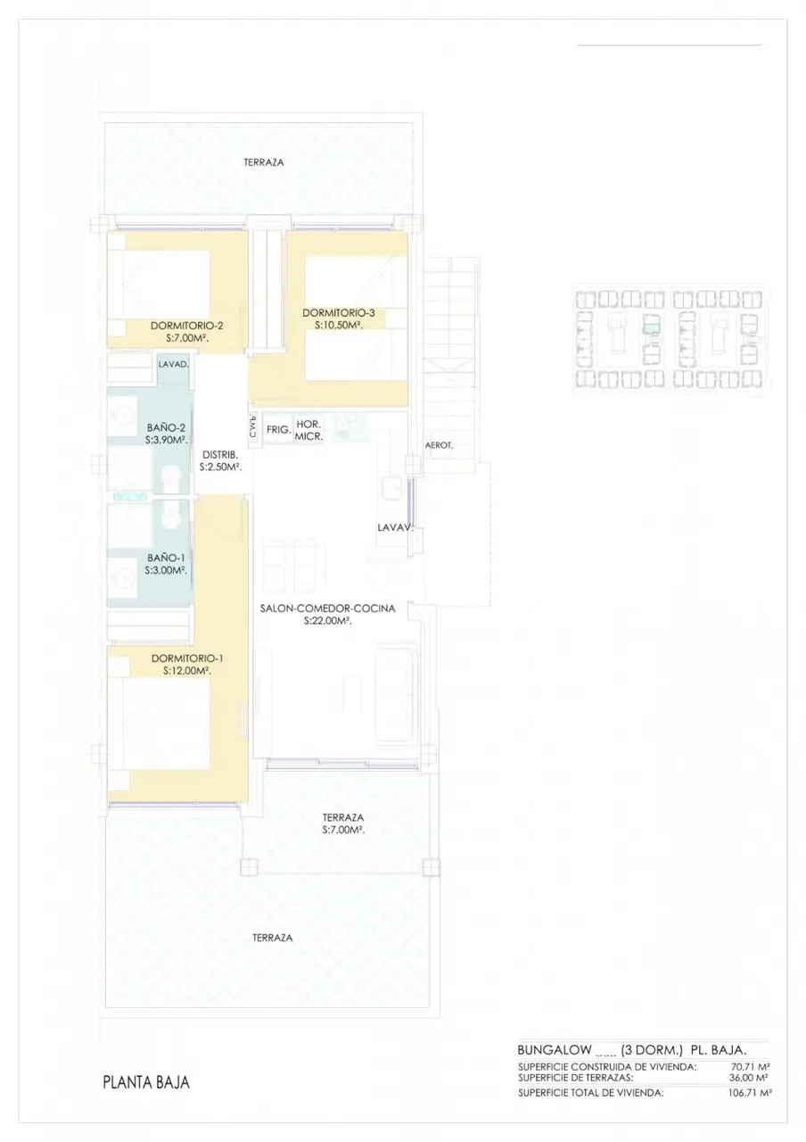
Kompleks składa się z 104 bungalowów z 2 i 3 sypialniami, bungalowy na ostatnim piętrze mają prywatne solarium z panoramicznym widokiem na słone jezioro, a bungalowy na parterze mają duże tarasy z widokiem na zieleń.
Te bungalowy mają wspólne piękne tereny zielone i 2 duże baseny.
Opcjonalnie dostępne są podziemne miejsca parkingowe i komórki lokatorskie.
Osiedle oferuje nowoczesny design, wyselekcjonowane materiały, apartamenty wykończone zgodnie z najwyższymi standardami przy użyciu wyłącznie materiałów najwyższej jakości.
Rezydentnej zostanie zbudowany na wzgórzu, w ten sposób widok, a także powietrze jest czyste i unikalne jakości.
Los Balcones znajduje się tuż obok Torrevieja z wszystkich dostępnych usług, zaledwie 5 minut od Playa de Los Náufragos, supermarkety, szkoła i La Zenia Boulevard Shopping Centre, a minutę od Torrevieja University Hospital.
Ponadto w pobliżu znajdują się 4 pola golfowe, w tym nagradzane Las Colinas Golf & Country Club.
Kompleks znajduje się 40 minut od lotniska w Alicante i 1 godzinę od lotniska Murcia – Corvera.




































