PIĘKNA KAMIENICA W LOS ALTOS, TORREVIEJA
Klucz Gotowy Nowy dom w Los Altos znajduje się kilka minut od szpitala Torrevieja i różowego jeziora soli.
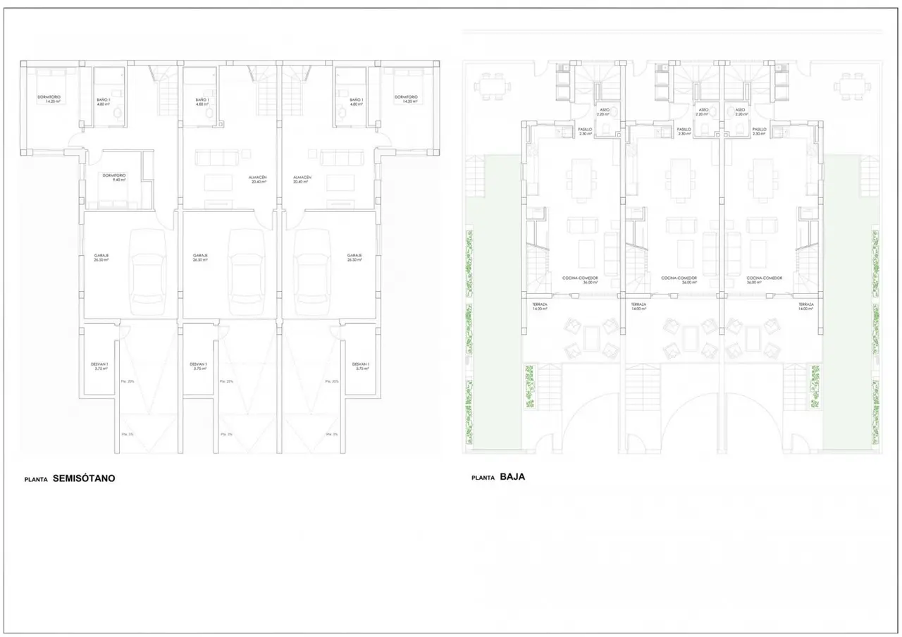
Dom w stylu śródziemnomorskim z 2 sypialniami, 3 łazienkami, salonem, kuchnią, tarasami, garażem i solarium z widokiem na różowe słone jezioro.
Los Altos to popularna dzielnica mieszkalna w południowej części Torrevieja, w pobliżu słonego jeziora.
W odległości spaceru są wszelkiego rodzaju usług, takich jak bary, sklepy, supermarkety, apteki, itp. Dokonywanie to idealne miejsce do życia przez cały rok.
Ponadto, jest to tylko 2 km od pięknych plaż.
Torrevieja to hiszpańskie miasto w prowincji Alicante, na wybrzeżu Costa Blanca.
Znane jest z typowo śródziemnomorskiego klimatu i linii brzegowej. Posiada deptaki z kurortami wzdłuż swoich piaszczystych plaż.
W małym Muzeum Morza i Soli znajdują się wystawy na temat rybołówstwa i historii soli w mieście.
W głębi miasta, w Parku Naturalnym Lagunas de La Mata-Torrevieja znajdują się szlaki i dwie słone laguny, jedna różowa, druga zielona.
Lotnisko w Alicante znajduje się 40 minut drogi od hotelu, a lotnisko w Murcji około 1 godziny drogi.




























