RYNEK PIERWOTNY KAMIENICE W TORREGUIL, MURCJA
Rynek Pierwotny kamienice i wille w zabudowie bliźniaczej położone w urbanizacji Torreguil, 20 minut od miasta Murcja i lotniska Corvera.
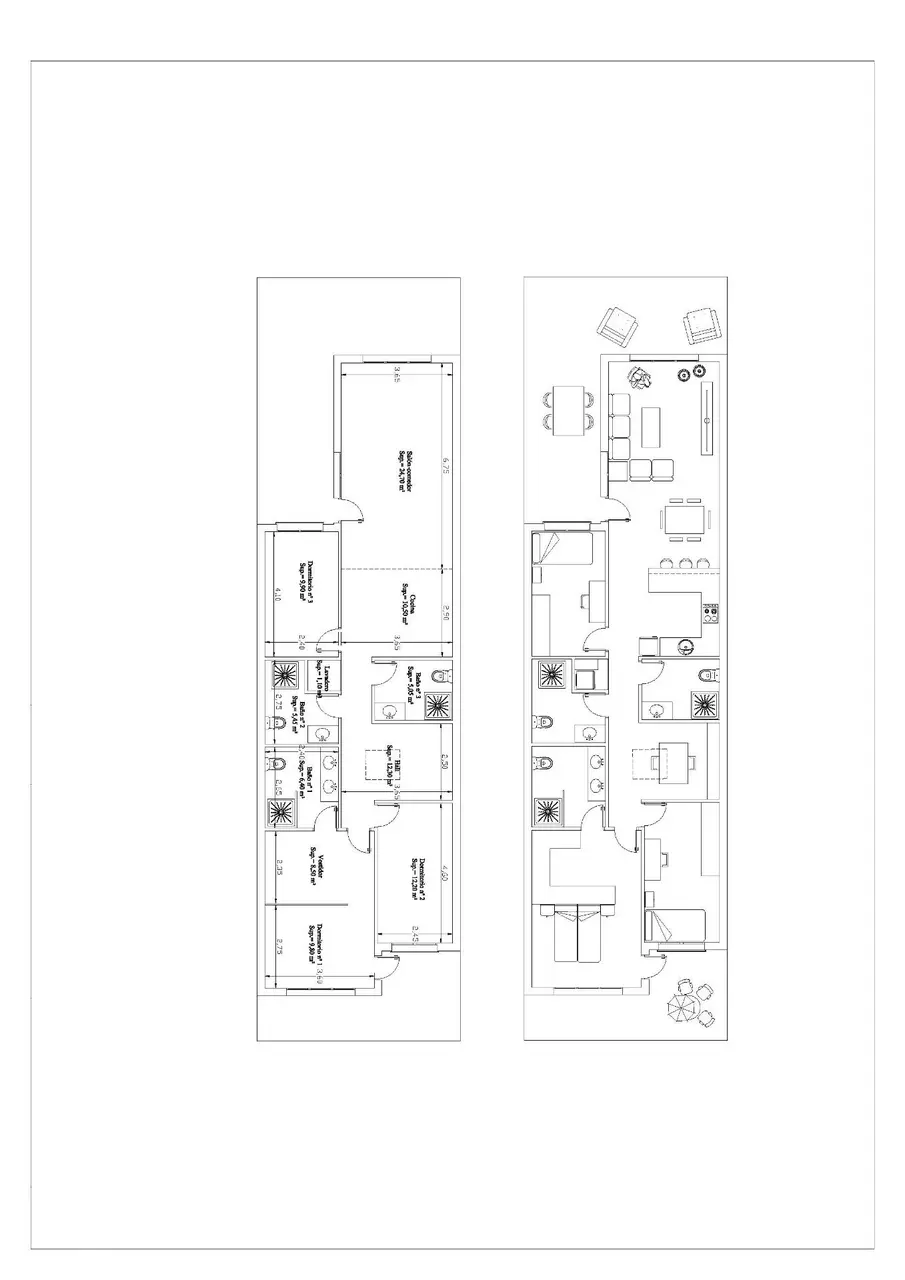
Nowoczesne nieruchomości zbudowane na 1 piętrze, mają 3 sypialnie, 2 łazienki, otwartą kuchnię z salonem, ogród z basenem i miejsce parkingowe.
Nieruchomości znajdują się w naturalnym środowisku otoczonym sosnami i na zamkniętej urbanizacji z całodobową ochroną.
Sangonera la Verde to miejscowość położona w Ogrodzie Murcji (Hiszpania) i znajduje się w południowo-zachodniej części gminy Murcja.





















