NOWE KAMIENICE W SAN JAVIER
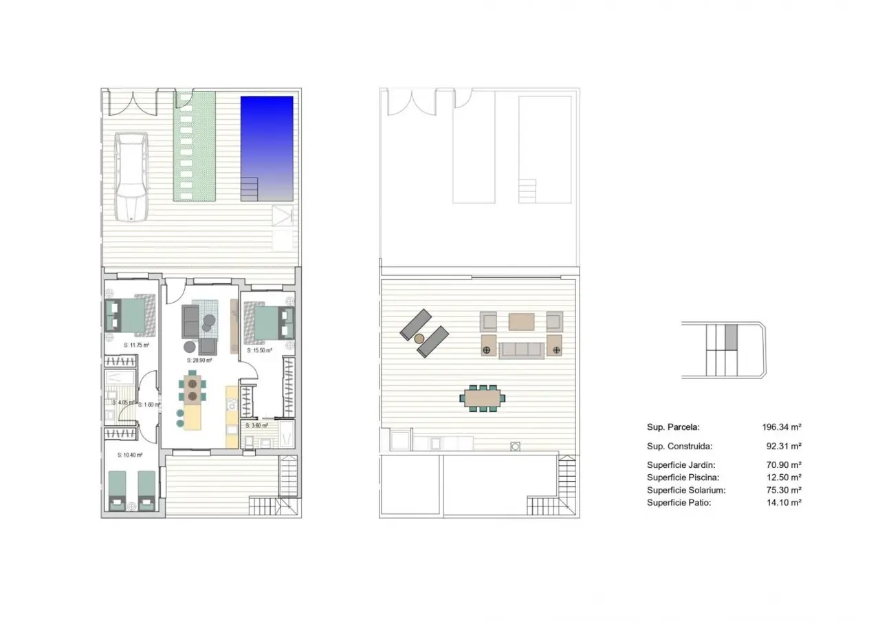
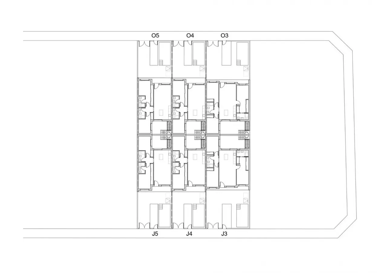
Nowy, luksusowy kompleks 24 willi jednopoziomowych lub dwupoziomowych z prywatnym basenem, tarasem i solarium z letnią kuchnią, która pozwala cieszyć się słońcem przez wszystkie godziny, każdego dnia w roku.
Każda willa ma 2 lub 3 sypialnie i 2 wyposażone łazienki na jednym poziomie lub 3 sypialnie i 3 wyposażone łazienki na dwóch poziomach.
Zaprojektowane we współczesnym stylu, z otwartą koncepcją, składającą się z w pełni wyposażonej kuchni i salonu-jadalni.
Inwestycja znajduje się w San Javier (Murcja), w pobliżu plaży, w otoczeniu usług, parków, obiektów sportowych i kilku pól golfowych.
Nieruchomość będzie spełniać najwyższe standardy i będzie wyposażona w:
Prywatny basen z prysznicem.
Kuchnia całkowicie umeblowana i wyposażona w piekarnik, mikrofalówkę, lodówkę, zintegrowaną zmywarkę, płytę grzewczą i wentylator wyciągowy.
Oświetlenie: wewnątrz nieruchomości (jadalnia, kuchnia, korytarze i łazienki), jak również na zewnątrz.
Wyłożone szafy z szufladami.
W pełni wyposażona łazienka z toaletą, szafką, lustrem i prysznicem z parawanem.
Preinstalacja klimatyzacji kanałowej.
Solarium z letnią kuchnią.
Miejsce parkingowe na działce.
San Javier znajduje się w pobliżu wszystkich udogodnień, z łatwym dostępem do plaży, sportów wodnych, sklepów i sieci transportowej.
Tutaj można korzystać z wszystkich udogodnień, które San Javier ma do zaoferowania, takich jak lokalne sklepy, bary i restauracje, jak również w pobliżu centrów handlowych, lotniska Murcia i wszystkich pięknych miejsc, które można znaleźć wzdłuż Mar Menor.
Lotnisko Corvera/Murcia jest oddalone o 30 minut jazdy, a lotnisko Alicante o 45 minut jazdy.











