RYNEK PIERWOTNY KOMPLEKS MIESZKANIOWY W LA FINCA GOLF
Rynek Pierwotny kompleks mieszkalny składający się z bungalowów i kamienic w La Finca Golf.
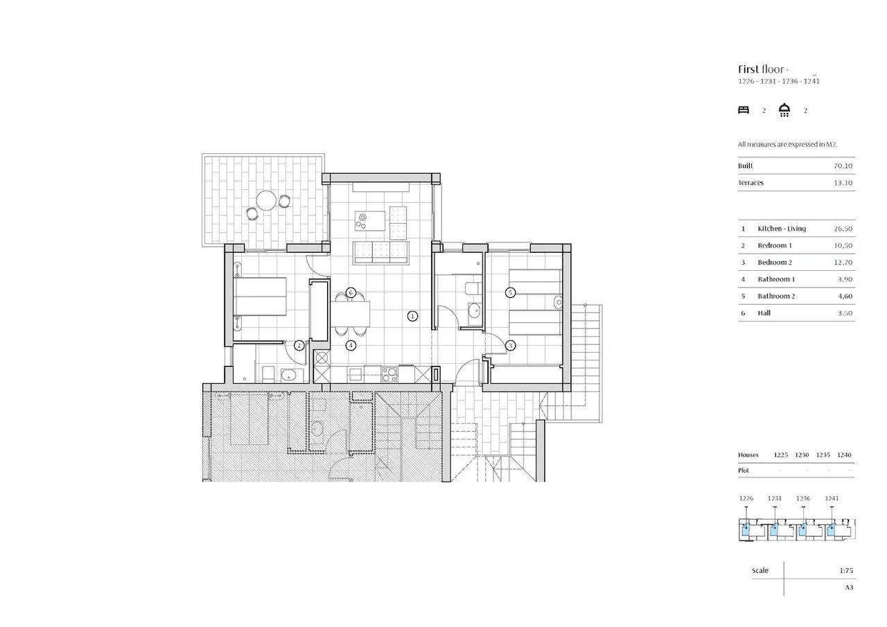
Nowoczesne bungalowy mają 2 sypialnie, 2 łazienki, kuchnię na otwartym planie zintegrowaną z
częścią dzienną łączącą sypialnie, łazienki i taras.
Bungalowy na parterze mają tarasy i ogrody, bungalowy na najwyższym piętrze mają tarasy i solaria na piętrze.
Orientacja południowa zapewnia naturalne oświetlenie o każdej porze roku i naturalne ogrzewanie od świtu do zachodu słońca, co zmniejsza zużycie energii. Otwarte nieruchomości koncepcyjne z oknami i przesuwanymi drzwiami umożliwiają wentylację krzyżową i wpuszczają światło. Nieruchomości są usytuowane w taki sposób, że światło może dostać się wszędzie, ale jednocześnie oferuje świeże i przytulne zakątki.
Nowa inwestycja ma miejsce na niesamowitej działce, na której domy zostały zrealizowane ze starannym projektem i dużymi przestrzeniami, aby osiągnąć maksymalny komfort.
Jego projekt koncentruje się na komforcie i dobrym samopoczuciu mieszkańców i łączy w sobie
współczesny styl i śródziemnomorski charakter, dziedzicząc tradycyjną morfologię z wykorzystaniem kamieni na elewacji i zadaszeniach.
Kuchnie będą dostarczane w pełni umeblowane z aktualnym projektem mebli wysokich i niskich o dużej pojemności. Szafki dolne są wykonane z białego matowego laminatu, a górne
z drewna melaminowego z teksturą na kolumnach. Półukryty profil uchwytu
z systemem gola*. Blat w obszarze roboczym i półwyspie Quarz Compac Blanco Luna lub podobny.
Opancerzone drzwi wejściowe z lakierowanym na biało wykończeniem skrzydła wewnętrznego i brązową fakturą na skrzydle zewnętrznym. Wizjer optyczny i zamek bezpieczeństwa.
Lakierowane na biało drzwi wewnętrzne z frontem z trzema listwami i prostokątnymi uchwytami ze stali nierdzewnej.
Wbudowane szafy z białymi drzwiami przesuwnymi.
Okna i drzwi przesuwne z brązowej stolarki aluminiowej z teksturowanym wykończeniem.
Okna uchylno-rozwierane w łazienkach, z matowym szkłem i ręcznymi żaluzjami.
Elektryczne i zmotoryzowane żaluzje, wykończone brązowym teksturowanym aluminium. Wszystkie rolety są podłączone do systemu automatyki domowej i są zsynchronizowane z zamykaniem i otwieraniem oraz mogą być obsługiwane za pomocą aplikacji.
Specjalne podwójne szyby z kontrolą słoneczną i niską emisyjnością, aby maksymalnie wykorzystać naturalne światło i zaoszczędzić na kosztach energii. Optymalny wygląd estetyczny, wyjątkowy kolor i minimalne odbicia.
Certyfikat energetyczny klasy A
Properties oferuje wysoki poziom certyfikacji energetycznej.
Jest to możliwe dzięki izolacji termicznej dachów i ścian, stolarce aluminiowej z podwójnymi szybami oraz instalacji 5 paneli słonecznych w każdym bloku
Domy są wyposażone w gniazda elektryczne i telekomunikacyjne wymagane przez przepisy elektrotechniczne niskiego napięcia.
Domofon do komunikacji między domem a głównym wejściem.
Zaawansowany system automatyki domowej do sterowania roletami z napędem silnikowym i trzema punktami świetlnymi.
Mechanizmy serii Legrand Valena Next, które można podłączyć do systemu automatyki domowej.
Wstępna instalacja klimatyzacji: centralna lub typu split w zależności od modelu.
W pełni wyposażony system alarmowy z jednym czujnikiem na pokój, panelem dotykowym i syreną.
Nowa inwestycja znajduje się w La Finca Golf.
Znajduje się obok pierwszej linii golfa, naprzeciwko 11 toru wodnego na polu golfowym La Finca, jednego z najbardziej charakterystycznych kompleksów w południowo-wschodniej Hiszpanii i powszechnego schronienia dla miłośników golfa.
Położony zaledwie 4 minuty od Algorfy, na południowym wybrzeżu Costa Blanca, ten kompleks z krytym parkingiem, wspólnym basenem i ogrodem jest idealnym miejscem dla tych, którzy chcą cieszyć się śródziemnomorskim stylem życia:
Bliskość plaży, golfa i gór, w otoczeniu spokoju, ale z dostępem do wszelkiego rodzaju usług i terenów rekreacyjnych.
Kilka minut od najpiękniejszych plaż południowego wybrzeża Costa Blanca i miejsc o wyjątkowej urodzie, takich jak Laguna Rosa de Torrevieja lub wydmy Guardamar del Segura.
Bliskość i łatwy dostęp do autostrady AP-7 i głównych dróg krajowych łączą kompleks z licznymi miastami na Costa Blanca, takimi jak Orihuela, Cartagena, Elche, Murcja i Alicante.
Lotniska w Alicante i Murcji znajdują się niecałe 30 minut jazdy samochodem i oferują połączenia z głównymi europejskimi stolicami.

























