preloader

Apartament

Costa Blanca South, Orihuela Costa, Hiszpania

Szczegóły nieruchomości
Sprzedaż 153 500 EUR

Odnowiony kompleks mieszkalny w Lomas de Cabo Roig – odnowione apartamenty

Apartamenty w doskonałej lokalizacji
Odkryj tę wyjątkową okazję do posiadania odnowionego mieszkania w Lomas de Cabo Roig, poszukiwanym obszarze w Orihuela Costa. Ten kompleks mieszkaniowy, pierwotnie zbudowany w 2008 roku, przechodzi renowację niektórych jednostek i zostanie oddany do użytku w czerwcu 2025 roku. Dom pokazowy jest dostępny do oglądania, co pozwala zobaczyć wysokiej jakości wykończenia z pierwszej ręki.

Opcje nieruchomości dostosowane do każdych potrzeb
Inwestycja oferuje 27 odnowionych mieszkań o różnych układach:

Mieszkania z 1 i 2 sypialniami, idealne na domy wakacyjne lub inwestycje.
Apartamenty na parterze z prywatnymi ogrodami, idealne do życia na świeżym powietrzu.
Apartamenty na średnim piętrze z przestronnymi tarasami, idealne do korzystania ze śródziemnomorskiego klimatu.
Penthouse’y z prywatnymi solariami, oferujące otwarte widoki i maksymalną prywatność.
Każdy dom jest dostarczany z ekranami prysznicowymi w łazienkach i w pełni wyposażonymi kuchniami ze sprzętem AGD, zapewniając nabywcom gotowe rozwiązanie.

Ekskluzywne udogodnienia dla społeczności
Kompleks mieszkaniowy został zaprojektowany z myślą o komforcie i relaksie:
Wspólny basen otoczony pięknymi ogrodami krajobrazowymi.
Winda zapewniająca łatwy dostęp do wszystkich pięter.
Opcjonalne podziemne miejsca parkingowe dostępne za dodatkową opłatą.

Bezkonkurencyjna lokalizacja w Orihuela Costa
Lomas de Cabo Roig to prestiżowa dzielnica mieszkaniowa położona zaledwie 2 km od wybrzeża Cabo Roig, gdzie znajdują się jedne z najpiękniejszych plaż w Orihuela Costa. Okolica jest dobrze skomunikowana drogowo i oferuje szeroki zakres usług, w tym sklepy, restauracje, supermarkety i centra handlowe.

Odległości do najważniejszych atrakcji:

Plaże Cabo Roig i Campoamor – 5 minut jazdy.
Centrum handlowe Zenia Boulevard – 5 km.
Pole golfowe Villamartín – 4 km.
Lotnisko Alicante – 30 minut jazdy samochodem.
Lotnisko Murcja-Corvera – 1 godzina jazdy samochodem.

Mądra inwestycja na Costa Blanca
Dzięki doskonałej lokalizacji, w pełni odnowionym apartamentom i najwyższej klasy udogodnieniom, inwestycja ta jest idealną okazją do inwestycji, wakacyjnego życia lub stałego zamieszkania. Nie przegap tej wyjątkowej szansy na posiadanie domu w jednym z najbardziej pożądanych obszarów Costa Blanca w bezkonkurencyjnej cenie.

Skontaktuj się z nami już dziś, aby uzyskać więcej informacji lub umówić się na wizytę!

  • Nieruchomość

    Apartament
  • Sypialnie

    2
  • Łazienki

    2
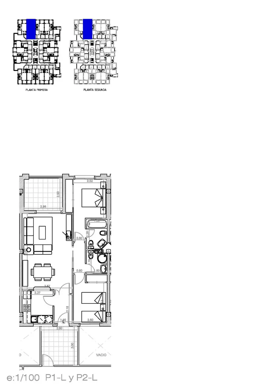
  • Powierzchnia

    69 m²
Dodatkowe informacje
  • Rynek:pierwotny
  • Taras:17 m²
  • Odległość do plaży:2000 metrów
  • Powierzchnia użytkowa :60 m²
  • Komórka lokatorska:tak
Lokalizacja na mapie
Inne nieruchomości

64 m²

225 000 EUR

Apartament

Costa Blanca South, Pilar de La Horadada, Hiszpania

  • Sypialnie

    2

  • Łazienki

    2

  • Basen

    Tak

110 m²

288 000 EUR

Apartament

Costa Calida, Aguilas, Hiszpania

  • Sypialnie

    3

  • Łazienki

    2

  • Basen

    Tak

Mateusz Wojciechowski

User Login

Lost your password?
Cart 0