Odnowiony kompleks mieszkalny w Lomas de Cabo Roig – odnowione apartamenty
Apartamenty w doskonałej lokalizacji
Odkryj tę wyjątkową okazję do posiadania odnowionego mieszkania w Lomas de Cabo Roig, poszukiwanym obszarze w Orihuela Costa. Ten kompleks mieszkaniowy, pierwotnie zbudowany w 2008 roku, przechodzi renowację niektórych jednostek i zostanie oddany do użytku w czerwcu 2025 roku. Dom pokazowy jest dostępny do oglądania, co pozwala zobaczyć wysokiej jakości wykończenia z pierwszej ręki.
Opcje nieruchomości dostosowane do każdych potrzeb
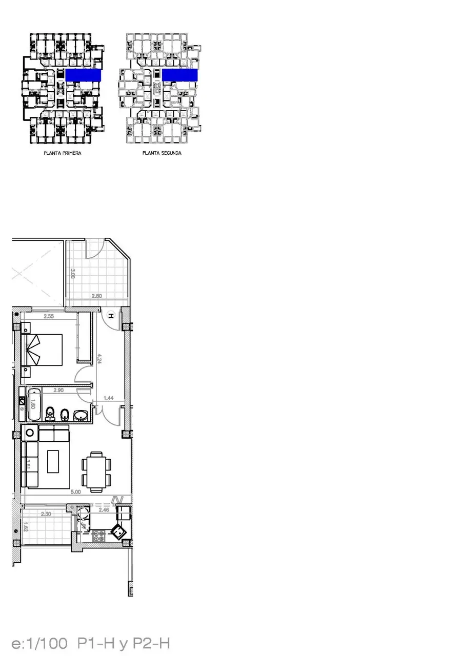
Inwestycja oferuje 27 odnowionych mieszkań o różnych układach:
Mieszkania z 1 i 2 sypialniami, idealne na domy wakacyjne lub inwestycje.
Apartamenty na parterze z prywatnymi ogrodami, idealne do życia na świeżym powietrzu.
Apartamenty na średnim piętrze z przestronnymi tarasami, idealne do korzystania ze śródziemnomorskiego klimatu.
Penthouse’y z prywatnymi solariami, oferujące otwarte widoki i maksymalną prywatność.
Każdy dom jest dostarczany z ekranami prysznicowymi w łazienkach i w pełni wyposażonymi kuchniami ze sprzętem AGD, zapewniając nabywcom gotowe rozwiązanie.
Ekskluzywne udogodnienia dla społeczności
Kompleks mieszkaniowy został zaprojektowany z myślą o komforcie i relaksie:
Wspólny basen otoczony pięknymi ogrodami krajobrazowymi.
Winda zapewniająca łatwy dostęp do wszystkich pięter.
Opcjonalne podziemne miejsca parkingowe dostępne za dodatkową opłatą.
Bezkonkurencyjna lokalizacja w Orihuela Costa
Lomas de Cabo Roig to prestiżowa dzielnica mieszkaniowa położona zaledwie 2 km od wybrzeża Cabo Roig, gdzie znajdują się jedne z najpiękniejszych plaż w Orihuela Costa. Okolica jest dobrze skomunikowana drogowo i oferuje szeroki zakres usług, w tym sklepy, restauracje, supermarkety i centra handlowe.
Odległości do najważniejszych atrakcji:
Plaże Cabo Roig i Campoamor – 5 minut jazdy.
Centrum handlowe Zenia Boulevard – 5 km.
Pole golfowe Villamartín – 4 km.
Lotnisko Alicante – 30 minut jazdy samochodem.
Lotnisko Murcja-Corvera – 1 godzina jazdy samochodem.
Mądra inwestycja na Costa Blanca
Dzięki doskonałej lokalizacji, w pełni odnowionym apartamentom i najwyższej klasy udogodnieniom, inwestycja ta jest idealną okazją do inwestycji, wakacyjnego życia lub stałego zamieszkania. Nie przegap tej wyjątkowej szansy na posiadanie domu w jednym z najbardziej pożądanych obszarów Costa Blanca w bezkonkurencyjnej cenie.
Skontaktuj się z nami już dziś, aby uzyskać więcej informacji lub umówić się na wizytę!















