preloader

Apartament

Costa Blanca South, Orihuela Costa, Hiszpania

Szczegóły nieruchomości
Sprzedaż 339 600 EUR

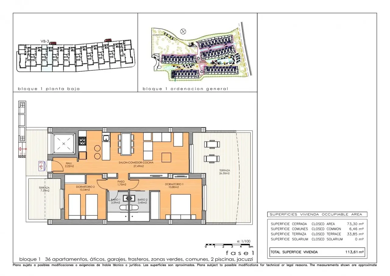
NOWY BUDYNEK MIESZKALNY W PLAYA FLAMENCA!!!

Od dobrze znanego dewelopera z dumą oferujemy to właśnie wypuszczone nowe osiedle zaledwie 500 m od morza w popularnej Playa Flamenca (Orihuela Costa).

Mieszkanie z ładnymi basenami komunalnymi, jacuzzi i ładnymi wspólnymi ogrodami. Wszystkie usługi, takie jak supermarkety, bary i restauracje, itp., znajdują się w odległości spaceru w bardzo centralnym miejscu w Orihuela Costa.

Szeroki wybór typów do wyboru: kawalerki, apartamenty z 1, 2 lub 3 sypialniami. Niskie piętra z prywatnymi ogrodami lub najwyższe piętra z prywatnymi solariami. Wszystkie domy posiadają miejsce parkingowe oraz komórkę lokatorską w cenie.

Centrum handlowe Zenia Boulevard oddalone o 1 km i kilka pól golfowych, takich jak Villamartin, Campoamor w odległości 5 km od tej rezydencji, będzie idealnym miejscem na wakacje lub stałe mieszkanie.

  • Nieruchomość

    Apartament
  • Sypialnie

    2
  • Łazienki

    2
  • Powierzchnia

    77 m²
Dodatkowe informacje
  • Rynek:pierwotny
  • Ogród:tak
  • Taras:40 m²
  • Odległość do plaży:500 metrów
  • Powierzchnia użytkowa :67 m²
Lokalizacja na mapie
Inne nieruchomości

80 m²

406 000 EUR

Apartament

Costa del Sol, Marbella, Hiszpania

  • Sypialnie

    2

  • Łazienki

    2

  • Basen

    Tak

83 m²

205 000 EUR

Apartament

Costa Blanca South - Inland, Hondón de las Nieves, Hiszpania

  • Sypialnie

    2

  • Łazienki

    2

  • Basen

    Tak

Marcin Halarewicz

User Login

Lost your password?
Cart 0