preloader

Apartament

Costa Blanca South - Inland, Hondón de las Nieves, Hiszpania

Szczegóły nieruchomości
Sprzedaż 205 000 EUR

Ekskluzywne nowe apartamenty z widokiem na winnice w Hondón de las Nieves

Nowoczesne domy w wyjątkowym otoczeniu przyrody
Odkryj nową inwestycję mieszkaniową w Hondón de las Nieves, uroczej wiosce położonej w pięknej dolinie otoczonej gajami oliwnymi i migdałowymi. Osiedle oferuje 15 ekskluzywnych domów z 2 i 3 sypialniami, zaprojektowanych z myślą o maksymalnym komforcie, efektywności energetycznej i wspaniałych widokach na winnice Vinalopó.

Położona w Vinalopó Medio, ta spokojna enklawa jest idealna dla osób poszukujących zrelaksowanego śródziemnomorskiego stylu życia, z łatwym dostępem do natury i wszystkich niezbędnych usług.

Wysokiej jakości funkcje i nowoczesny design
Każde mieszkanie zostało zaprojektowane z najwyższej jakości materiałów i ma funkcjonalny układ:

Przestronne i otwarte przestrzenie mieszkalne, idealne do nowoczesnego życia.
W pełni wyposażone kuchnie z granitowymi blatami.
Najwyższej klasy łazienki z wbudowanymi spłuczkami i najwyższej jakości urządzeniami sanitarnymi.
Efektywność energetyczna z systemem aerotermalnym do ciepłej wody.
Wstępna instalacja klimatyzacji kanałowej, gwarantująca komfort o każdej porze roku.
Aluminiowe okna z podwójnymi szybami, zapewniające izolację termiczną i akustyczną.
Wzmocnione drzwi wejściowe zapewniające spokój ducha.
Miejsce parkingowe i komórka lokatorska w piwnicy wliczone w cenę.
Winda w budynku, zapewniająca dostępność i komfort.
Panele słoneczne na dachu w celu poprawy efektywności energetycznej i zmniejszenia kosztów utrzymania.
Ponadto w budynku znajduje się wspólny basen, idealny do korzystania ze śródziemnomorskiego klimatu.

Uprzywilejowana lokalizacja w Hondón de las Nieves
Hondón de las Nieves to miejscowość z bogatą tradycją uprawy winorośli, słynąca z winogron stołowych o nazwie pochodzenia Vinalopó. Otoczony przez Sierra de Crevillente obszar oferuje liczne szlaki turystyczne, obszary przyrodnicze oraz bogatą ofertę kulturalną i historyczną.

Z nowego domu będziesz miał szybki dostęp do głównych atrakcji w okolicy:

Lotnisko Alicante – 30 km (30 minut jazdy samochodem).
Plaże Alicante – 35 km (35 minut jazdy samochodem)
Elche – 20 km (20 minut jazdy samochodem)
Park przyrody Crevillente – 10 km (15 minut jazdy samochodem)
Pola golfowe – 25 km (30 minut jazdy samochodem)

Idealny dom na wybrzeżu Costa Blanca
Ciesz się spokojem doliny Hondón, nie rezygnując z bliskości Alicante i Elche. Niezależnie od tego, czy chodzi o stałe miejsce zamieszkania, dom wakacyjny czy nieruchomość inwestycyjną, te nowoczesne mieszkania są bezkonkurencyjnym wyborem.

Skontaktuj się z nami już dziś, aby uzyskać więcej informacji lub umówić się na oglądanie.

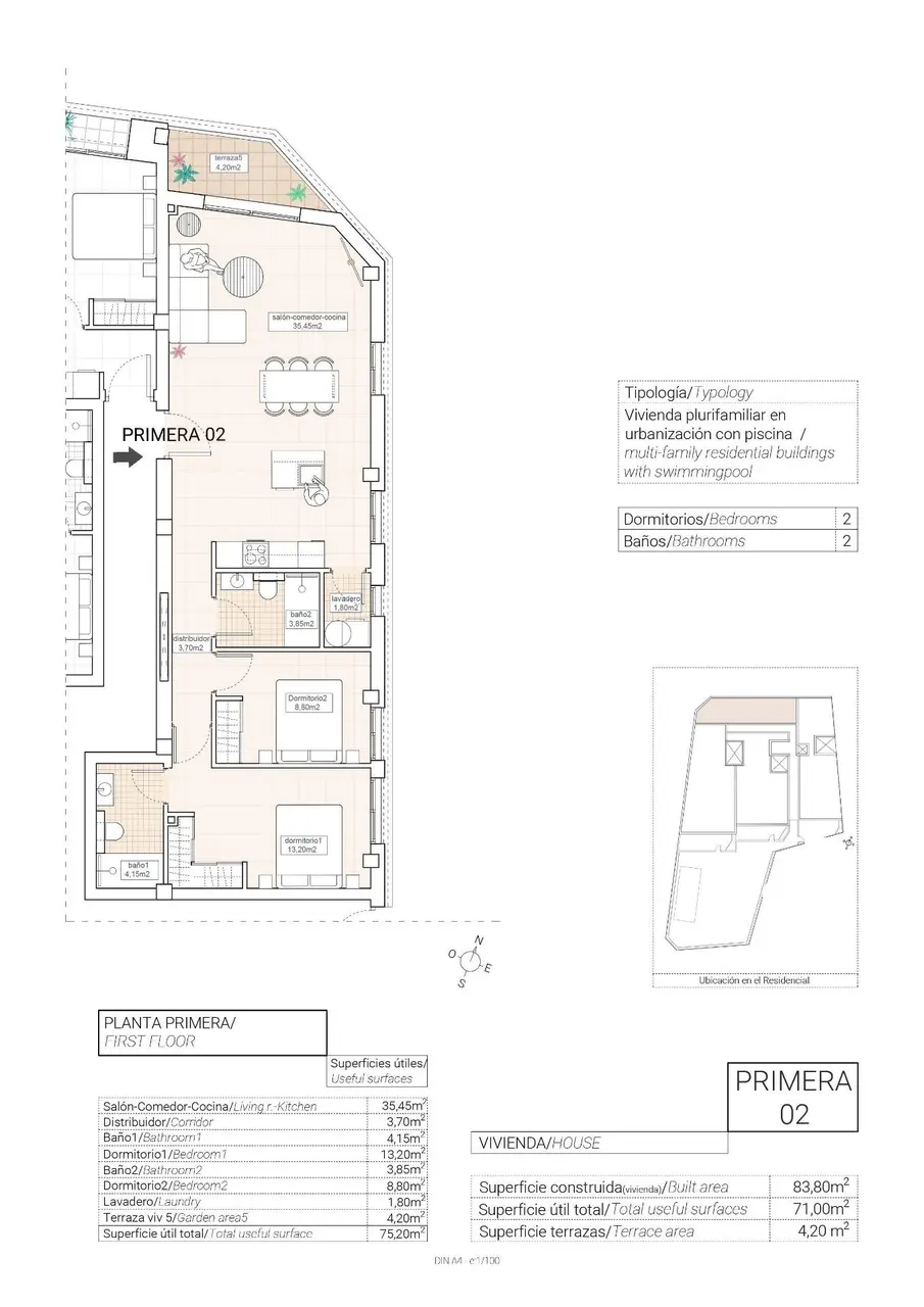
  • Nieruchomość

    Apartament
  • Sypialnie

    2
  • Łazienki

    2
  • Powierzchnia

    83 m²
Dodatkowe informacje
  • Rynek:pierwotny
  • Taras:4 m²
  • Odległość do plaży:37000 metrów
  • Powierzchnia użytkowa :71 m²
Lokalizacja na mapie
Inne nieruchomości

99 m²

375 000 EUR

Apartament

Costa Blanca South, Orihuela Costa, Hiszpania

  • Sypialnie

    3

  • Łazienki

    2

  • Basen

    Tak

69 m²

153 500 EUR

Apartament

Costa Blanca South, Orihuela Costa, Hiszpania

  • Sypialnie

    2

  • Łazienki

    2

  • Basen

    Tak

Andrzej Wojciechowski

User Login

Lost your password?
Cart 0