RYNEK PIERWOTNY BUDYNEK MIESZKALNY W BENIJOFAR
Rynek Pierwotny budynek mieszkalny ze wspólnym basenem na dachu położony w centrum uroczej miejscowości Benijofar.
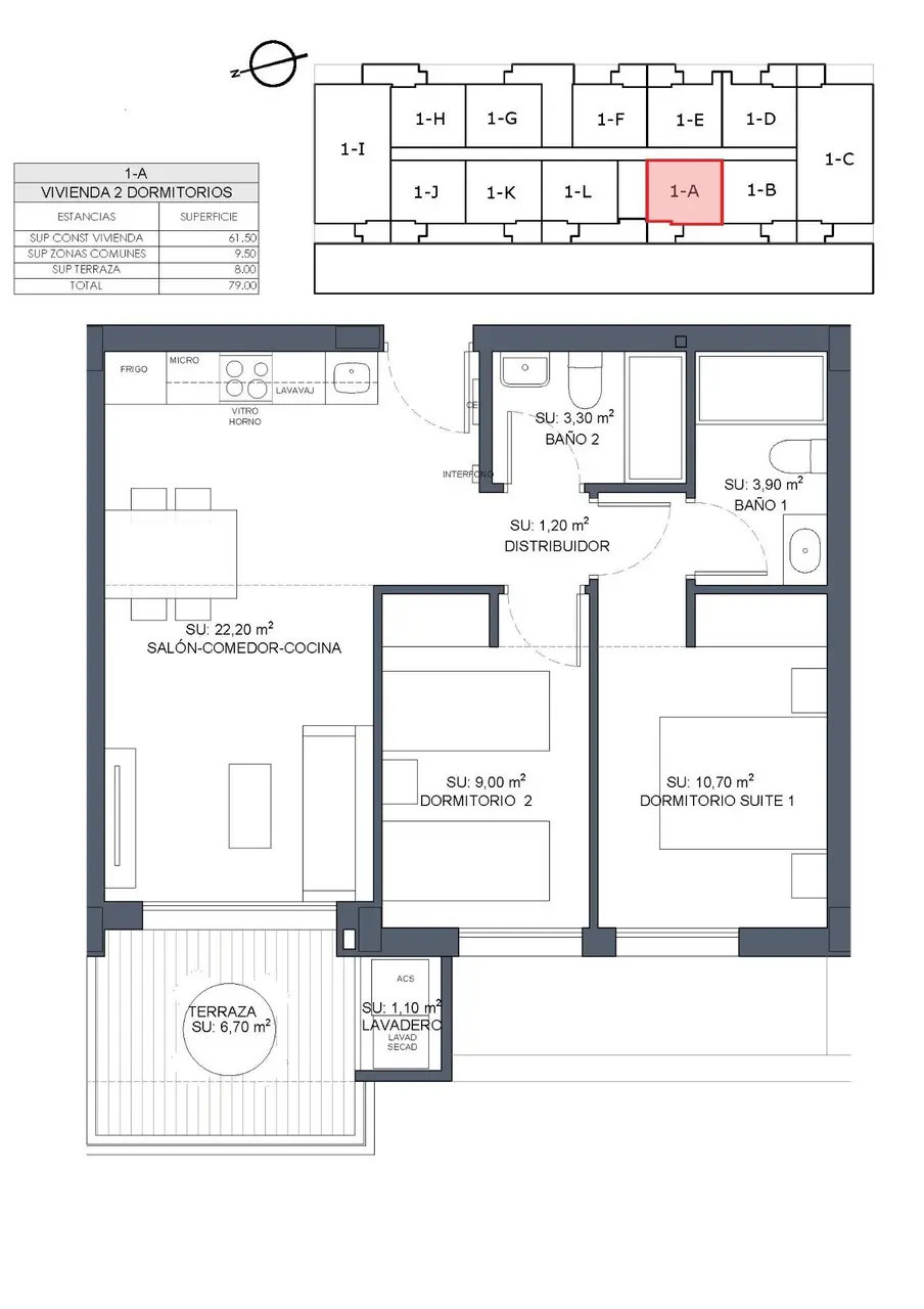
Do wyboru są nowoczesne apartamenty z tarasami lub penthousy z solarium.
Nowo wybudowane nowoczesne nieruchomości z kuchnią i salonem na otwartym planie, 2 i 3 sypialniami, 2 łazienkami, tarasami.
Opcje podziemnego miejsca parkingowego za dodatkową opłatą.
Benijofar to urocza wioska z uroczym kościołem i atrakcyjnym placem położonym w głębi lądu na południowym wybrzeżu Costa Blanca, w pobliżu kurortów turystycznych Guardamar del Segura i Torrevieja.
Benijofar jest również popularnym miejscem na letnie wakacje, ponieważ jest wystarczająco blisko nadmorskich kurortów, a jednocześnie wystarczająco cicho, aby móc uciec od tego wszystkiego.
W pobliżu znajduje się kilka pól golfowych, a także parki wodne w pobliskim Rojales i Torrevieja.
Najbliższe i najlepsze plaże w Benijofar znajdują się około piętnastu minut jazdy samochodem i są jednymi z najlepszych plaż na południowym wybrzeżu Costa Blanca, w Guardamar del Segura i Torrevieja. Istnieją również regularne połączenia autobusowe z Benijofar do Guardamar del Segura i Torrevieja z łatwym dostępem do plaż.
20 minut jazdy do lotniska w Alicante z regularnymi lotami do całej Europy.














